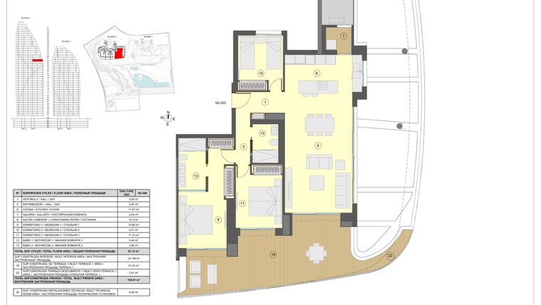
Mieszkanie na sprzedaż 3 pokoje o powierzchni 155 m² numer 26-N2-200
Inwestycja:
Apartamenty w Benidorm - 28229441Deweloper:
Homiia
Inwestycja:
Apartamenty w Benidorm - 28229441Deweloper:
HomiiaBenidorm, C. Brasil
Benidorm, C. Brasil
Termin oddania
3 kw. 2026
Ilość pokoi
3 pokoje
Metraż
155 m²
Piętro
26 piętro
Powierzchnie dodatkowe
Taras
Kuchnia
otwarta kuchnia
Wysokość pomieszczeń
od 260 do 280 cm wysokości
Ilość poziomów
1 poziom
Oznaczenie oferty
26-N2-200
Odległość od lotniska
74 km
Odległość od morza
1 km
Budynek i otoczenie
Miejsca postojowe | |
|---|---|
Standard wykończenia | wykończenie pod klucz |
Realizacja inwestycji | rozpoczęcie budowy w 1 kw. 2025 roku, planowane oddanie do użytkowania w 3 kw. 2026 roku |
Udogodnienia | ochrona całodobowa, plac zabaw, basen, winda |
Przyroda | w okolicy inwestycji znajduje się morze |
Charakterystyka energetyczna nieruchomości | informacja u dewelopera |
Rezerwacja i finanse
Rodzaj własności | Odrębna własność z własnością gruntu |
|---|---|
Wysokość czynszu | informacja u dewelopera |
Warunki rezerwacji | Informacja u dewelopera |
Zabezpieczenie środków | Otwarty mieszkaniowy rachunek powierniczy i gwarancję ubezpieczeniową |
Zdjęcia z budowy
Zobacz na jakim etapie budowy jest ta inwestycja
Lokalizacja inwestycji
Opis oferty
Nowe 3-pokojowe mieszkanie na sprzedaż o powierzchni 155 m² znajduje się w nowo budowanej inwestycji deweloperskiej Apartamenty w Benidorm - 28229441 w Benidorm (2.8 km od centrum Benidorm).
Sprzedaż prowadzi Homiia.
Cała inwestycja składa się z 2 budynków, w których łącznie znajduje się 75 nowych mieszkań.
Na sprzedaż pozostaje 10 ofert o powierzchni od 75 do 423 m².
W budynkach jest od 32 do 42 kondygnacji naziemnych oraz 4 kondygnacje podziemne.
Inwestycja Apartamenty w Benidorm - 28229441 jest w trakcie budowy z planowanym na 3 kw. 2026 roku terminem oddania do użytkowania.
Nowe mieszkanie o oznaczeniu 26-N2-200 znajduje się na 26 piętrze i jest 1-poziomowe. Pomieszczenia mają od 260 do 280 centymetrów wysokości. W mieszkaniu znajdują się 3 pokoje.
Dla przyszłych mieszkańców Apartamenty w Benidorm - 28229441 deweloper przewidział miejsca postojowe podziemne.
Dzięki temu przyszli właściciele nie będą musieli poszukiwać wolnej przestrzeni parkingowej. Dodatkowo, miejsce postojowe w garażu podziemnym zabezpiecza przed niekorzystnymi warunkami atmosferycznymi.
Opis Inwestycji
Pow. dodatkowe
Luksusowy kompleks mieszkaniowy położony zaledwie kilka metrów od plaży Poniente w Benidorm. Składa się z dwóch 30-piętrowych wież z domami z 1, 2, 3 i 4 sypialniami o doskonałej jakości i jakości premium1. Osiedle oferuje spektakularne widoki na morze i panoramę Benidorm, a także przestronne części wspólne z basenami, jacuzzi, chilloutem, siłownią, sauną, kinem, klubem dla dzieci, boiskami sportowymi i nie tylko.
Budynek mieszkalny charakteryzuje się zakrzywionym kształtem tarasów ze szklanymi balustradami, które przypominają żagle łodzi. Elewacje mają okładziny ceramiczne, zaprawę w różnych odcieniach i system oświetlenia LED, który tworzy ikoniczny obraz w nocy. Obudowa składa się z dwóch skrzydeł z izolacją termiczną i akustyczną. Zewnętrzna stolarka jest wykonana z PVC z podwójnymi szybami, a drzwi balkonowe są podnoszono-przesuwne.
Wnętrze domów wyróżnia się przestronnością, jasnością i nowoczesnym wzornictwem. Podłoga w całym domu wykonana jest z wielkoformatowego rektyfikowanego gresu porcelanowego, a płytki w łazience z wysokiej jakości rektyfikowanego gresu porcelanowego. Ściany wykończone są gładką farbą plastikową w różnych kolorach do wyboru. Drzwi wewnętrzne wykonane są z lakierowanego MDF z ukrytymi zawiasami i magnetycznymi prowadnicami. Szafy są wbudowane i w pełni wyposażone w szuflady, półki, antresolę i inne akcesoria. Kuchnia jest w pełni wyposażona w szafki dolne, ścienne i wysokie, blat kwarcowy, zlew podblatowy, okap i instalację wstępną do urządzeń elektrycznych. Łazienki mają ogrzewanie podłogowe, elektryczny wieszak na ręczniki, brodziki z żywicy, szklane ekrany, wiszące szafki umywalkowe z blatem z żywicy, podświetlane lustra z systemem zapobiegającym zaparowywaniu, wysokiej jakości krany, deszczownice, toalety z ukrytą spłuczką i higieniczny prysznic.
Mieszkanie znajduje się w inwestycji Apartamenty w Benidorm - 28229441, w której znajdują się w sprzedaży jeszcze 3 podobne nowe mieszkania.
Homiia
Strona internetowa inwestycjiAdres biura sprzedaży:
Avenida Alfonso 10 el Sabio 1 2D, Alicante, SpainGodziny otwarcia biura sprzedaży:
- Poniedziałek: 10:00 - 18:00
- Wtorek: 10:00 - 18:00
- Środa: 10:00 - 18:00
- Czwartek: 10:00 - 18:00
- Piątek: 10:00 - 18:00





