Linea Mare Mrzeżyno
Apartamenty na sprzedaż oferowane bezpośrednio przez Linea Mare Apartments
gryficki, Mrzeżyno, ul. Nadmorska 14
gryficki, Mrzeżyno, ul. Nadmorska 14
:format(jpg)/offers/offer/19414/main_image/linea-mare-mrzezyno_9e3296.jpg)
:format(jpg)/offers/offer/19414/main_image/linea-mare-mrzezyno_9e3296.jpg)
1 zdjęcie
Termin oddania
Gotowe
Powierzchnie
26 - 39/m2
Przedział pokoi
1 - 2
Kondygnacje
4
Budynki
1
Stand. wykończenia
Wykończenie pod klucz
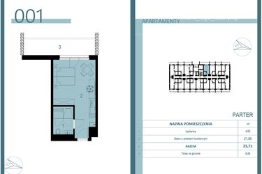
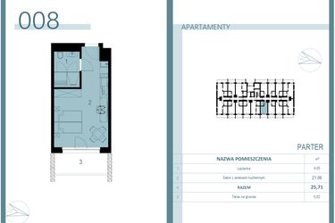
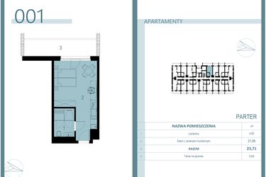
Apartamenty w inwestycji (67)
Sortuj
Przystanek Autobusowy - 191 m
Dojazd do centrum Kołobrzegu: pokaż
W pobliżu 1 km od tej inwestycji znajdują się:
19 kawiarni i restauracji, 13 sklepów, 36 obiektów sportowych, 1 placówka edukacyjna, 7 placów zabaw
Zdjęcia z budowy
Zobacz na jakim etapie budowy jest ta inwestycja
Udogodnienia Inwestycji
Standard i bezpieczeństwo
- monitoring
- teren ogrodzony
- winda
- rowerownia
- Wykończenie pod klucz
Instalacje i energetyka
- klimatyzacja
- instalacja fotowoltaiczna
Rekreacja
- sauna
Przyroda w okolicy
- las
- morze
Szczegóły inwestycji
Realizacja inwestycji: | rozpoczęcie budowy w 4 kw. 2023 roku, inwestycja została oddana do użytkowania w 2 kw. 2025 roku |
|---|---|
Liczba budynków: | cała inwestycja składa się z 1 budynku |
Liczba kondygnacji: | budynek posiada 4 kondygnacje naziemne wraz z parterem oraz nie posiada kondygnacji podziemnych |
Liczba apartamentów: | cała inwestycja składa się z 67 apartamentów |
Wysokość pomieszczeń: | w zależności od kondygnacji od 260 do 280 cm wysokości |
Standard wykończenia | wykończenie pod klucz |
Rodzaj własności: | odrębna własność z własnością gruntu |
Powierzchnie dodatkowe: | nie przewidziano powierzchni dodatkowych |
Komórki lokatorskie: | nie przewidziano |
Miejsca postojowe: | w inwestycji przewidziano:
|
Przyroda: | w okolicy inwestycji znajduje się las, morze |
Typ nieruchomości: |
Aktualna oferta
Dostępne apartamenty: | aktualnie dostępnych jest 67 apartamentów w tym 67 lokali typu apartament |
|---|---|
Powierzchnie apartamentów: | od 26 do 39 m² |
Liczba pokoi: | dostępne są apartamenty 1, 2-pokojowe |
Opis płatności: | Informacja u dewelopera |
Warunki rezerwacji: | Informacja u dewelopera |
Zabezpieczenie środków klienta: | informacja u dewelopera |
Wysokość czynszu: | informacja u dewelopera |
Opis inwestycji
Linea Mare Mrzeżyno to nowoczesny kompleks apartamentowy zlokalizowany w jednej z najbardziej kameralnych i spokojnych miejscowości nad Bałtykiem - bezpośrednio przy zejściu na plażę. W ramach I etapu inwestycji powstało 67 funkcjonalnych apartamentów typu 1 i 2-pokojowego, każdy z balkonem lub przestronnym tarasem oraz miejscem postojowym na terenie zamkniętym. Obiekt został ukończony w czerwcu 2025 roku i oferuje gotowe apartamenty, dostępne od ręki - idealne zarówno do zamieszkania, jak i wynajmu już od pierwszego dnia.
To inwestycja w modelu second home - możesz mieszkać, wynajmować lub łączyć oba modele według własnych potrzeb. Kupujesz lokal w pełnej własności z wpisem do księgi wieczystej, bez konieczności zakładania działalności gospodarczej. Apartamenty są w pełni urządzone, wyposażone w aneksy kuchenne i gotowe do użytkowania od razu po odbiorze kluczy. Możliwość odliczenia VAT czyni inwestycję jeszcze bardziej atrakcyjną dla nabywców inwestycyjnych. W wybranych lokalach dostępne są prywatne sauny w łazienkach – idealne na chłodne dni i wieczorny relaks.
Całość została zaprojektowana z poszanowaniem lokalnego klimatu i otoczenia - niska zabudowa, naturalne materiały i architektura harmonizująca z nadmorskim krajobrazem. Inwestycja łączy prywatność, nowoczesność i komfort z bezpośrednim dostępem do morza. Niskie koszty utrzymania oraz opcjonalne wsparcie operatora najmu sprawiają, że to doskonały wybór zarówno do wypoczynku, jak i jako lokata kapitału.
Na terenie obiektu znajdziesz m.in.:
* balkony i tarasy w lokalach na parterze
* monitoring i kontrolę dostępu
* miejsce postojowe do każdego apartamentu
* stojaki na rowery oraz stację serwisową (narzędzia, pompka)
*Pełną własność z księgą wieczystą - bez konieczności zakładania działalności D62 bez udziału w skomplikowanych strukturach operatorskich.
*Gotowy lokal z pełnym wyposażeniem - W standardzie: komplet AGD, naczynia, szkło, sztućce – wszystko gotowe do zamieszkania lub najmu od dnia odbioru (czerwiec 2025).
*Możliwość odliczenia VAT - atrakcyjne dla osób traktujących zakup również jako formę inwestycji.
*Niskie koszty utrzymania - brak infrastruktury typu basen, SPA czy restauracja = brak dodatkowych opłat, które w wielu inwestycjach mocno obciążają właściciela. Dodatkowo instalacja fotowoltaiczna na częściach wspólnych.
*Wysoka jakość wykończenia i wyposażenia. W standardzie m.in. klimatyzacja w każdym apartamencie oraz w wybranych lokalach – prywatna sauna w łazience. Sprzęt AGD klasy premium (np. Samsung) – pełne zestawienie w załączniku „Zestawienie wyposażenia LINEA MARE MRZEŻYNO”.
*Elastyczność najmu - Zapewniamy sprawdzonego operatora, ale nie narzucamy sztywnego modelu zarządzania. To Ty decydujesz, jak korzystasz ze swojego apartamentu.
Inwestycja Linea Mare Mrzeżyno znajduje się w Mrzeżynie, ul. Nadmorska 14 (14.1 km od Kołobrzegu), została zrealizowana przez Linea Mare Apartments.
Inwestycja Linea Mare Mrzeżyno została wybudowana i oddana do użytkowania w 2 kw. 2025 roku.
Cały projekt składa się z 67 nowych apartamentów znajdujących się w 1 budynku. Budynek posiada 4 kondygnacje naziemne wraz z parterem oraz nie posiada kondygnacji podziemnych.
Aktualnie w inwestycji Linea Mare Mrzeżyno w sprzedaży jest 67 nowych apartamentów o powierzchni od 26 do 39 metrów kwadratowych .
Dla przyszłych mieszkańców Linea Mare Mrzeżyno deweloper przewidział:
- miejsca postojowe naziemne (67 miejsc)
Lokalizacja inwestycji
Powiat gryficki to leżący w woj. zachodniopomorskim region o powierzchni 1017 km2. Zamieszkiwany jest przez ponad 61 500 osób. Składa się z 6 gmin oraz trzech miast, a jego siedzibą są Gryfice. Graniczy z czterema powiatami, a od północy sąsiaduje z Morzem Bałtyckim, co decyduje o jego nieprzeciętnych walorach turystycznych. Przepływa tędy rzeka Rega. W zależności od konkretnych miejscowości, występuje tu zabudowa typowa dla wsi lub małych miast ze sporą liczbą klimatycznych zabytków, głównie kościołów. Ponad 66% powierzchni to użytki rolne, co zapewnia mieszkańcom odpoczynek od atmosfery wielkomiejskiej. W regionie funkcjonują instytucje niezbędne mieszkańcom w codziennym życiu. Działają tu szkoły, muzea, kluby sportowe i placówki kulturalne. W Gryficach mieści się szpital specjalistyczny i działa pogotowie ratunkowe. Przez region biegnie droga krajowa nr 6 oraz 7 dróg wojewódzkich. Funkcjonuje tu transport wodny i kolejowy.
Komunikacja
Jak wygląda komunikacja w okolicy inwestycji Linea Mare Mrzeżyno?
Południową część powiatu przecina droga krajowa nr 6, która jest częścią europejskiej trasy E28. Biegną tędy także drogi wojewódzkie nr: 102, 103, 105, 108, 109, 110 i 152. W Mrzeżynie zlokalizowany jest port morski, a w Niechorzu i Rewalu znajdują się przystanie. Przez powiat przebiega trasa kolejowa prowadząca do Koszalina.
Przyszli mieszkańcy inwestycji Linea Mare Mrzeżyno mogą korzystać z rozbudowanej sieci połączeń komunikacyjnych. W odległości 200 metrów od inwestycji Linea Mare Mrzeżyno znajduje się najbliższy punkt komunikacyjny - Mrzeżyno Piramida.
Edukacja
Czy w pobliżu inwestycji Linea Mare Mrzeżyno znajdują się szkoły/przedszkola?
Mieszkańcy mogą korzystać z bogatej oferty edukacyjnej. W najbliższej okolicy inwestycji Linea Mare Mrzeżyno znajduje się 1 placówka edukacyjna. Najbliżej położone to: Szkoła Podstawowa z Oddziałami Integracyjnymi im. Kawalerów Orderu Uśmiechu w odległości 500 m.
Sklepy i usługi
Jak daleko jest do najbliższego sklepu?
Na infrastrukturę handlowo-usługową inwestycji Linea Mare Mrzeżyno składa się wiele punktów. Nieopodal, w odległości 100 m znajduje się Żabka.
Sport
Bliskość terenów rekreacyjnych oraz obiektów sportowych to mocna strona tej lokalizacji. W najbliższej okolicy inwestycji Linea Mare Mrzeżyno w odległości 100 m znajduje się boisko / kort, w odległości 100 m znajduje się basen.
Linea Mare Apartments
Strona internetowa inwestycjiAdres biura sprzedaży:
ul. Nadmorska 14, 72-330 MrzeżynoGodziny otwarcia biura sprzedaży:
- Poniedziałek: 10:00 - 18:00
- Wtorek: 10:00 - 18:00
- Środa: 10:00 - 18:00
- Czwartek: 10:00 - 18:00
- Piątek: 10:00 - 18:00





