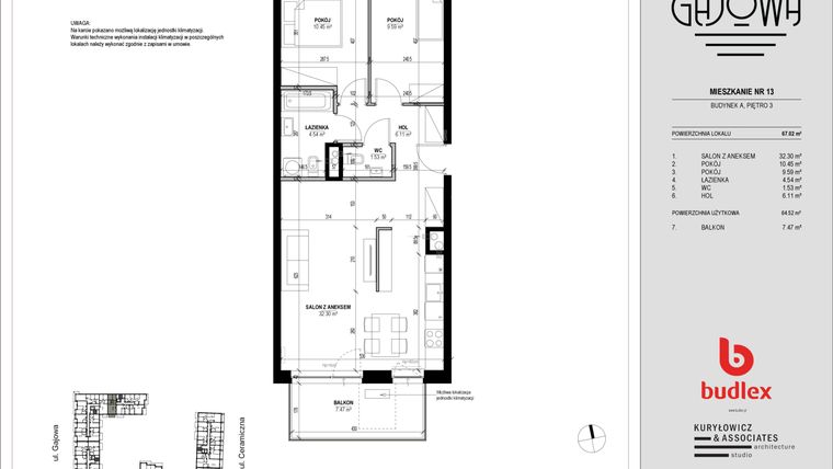
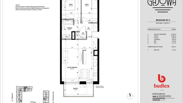
Mieszkanie na sprzedaż 3 pokoje o powierzchni 66,22 m² numer 13
Inwestycja:
Gajowa bud. ADeweloper:
Budlex Sp. z o.o.
Inwestycja:
Gajowa bud. ADeweloper:
Budlex Sp. z o.o.Bydgoszcz, Bartodzieje, ul. Gajowa 18
Bydgoszcz, Bartodzieje, ul. Gajowa 18
Termin oddania
4 kw. 2026
Ilość pokoi
3 pokoje
Metraż
66,22 m²
Piętro
3 piętro
Kuchnia
otwarta kuchnia
Wysokość pomieszczeń
od 260 do 280 cm wysokości
Ilość poziomów
1 poziom
Oznaczenie oferty
13

Raport o deweloperze
Poznaj dewelopera bliżej! Pobierz raport, w którym znajdziesz kluczowe informacje o firmie, jej doświadczeniu, nagrodach oraz aktualnych i zrealizowanych inwestycjach.
Budynek i otoczenie
Miejsca postojowe | |
|---|---|
Komórki lokatorskie | dostępne |
Standard wykończenia | standard deweloperski Ogrzewanie miejskie |
Realizacja inwestycji | rozpoczęcie budowy w 4 kw. 2024 roku, planowane oddanie do użytkowania w 4 kw. 2026 roku |
Udogodnienia | plac zabaw, monitoring, teren ogrodzony, usługi w budynku, winda, paczkomat |
Przyroda | w okolicy inwestycji znajduje się park, jezioro |
Charakterystyka energetyczna nieruchomości | informacja u dewelopera |
Rezerwacja i finanse
Rodzaj własności | Odrębna własność z własnością gruntu |
|---|---|
Wysokość czynszu | informacja u dewelopera |
Warunki rezerwacji | Informacja u dewelopera |
Zabezpieczenie środków | Informacja u dewelopera |
Zdjęcia z budowy
Zobacz na jakim etapie budowy jest ta inwestycja
Lokalizacja inwestycji
Stacja kolejowa - Bydgoszcz Bielawy - 1220 m
Przystanek Tramwajowy - 412 m
Przystanek Autobusowy - 317 m
Dojazd do centrum: pokaż
W pobliżu 1 km od tej inwestycji znajdują się:
25 kawiarni i restauracji, 49 sklepów, 62 obiekty sportowe, 24 placówki medyczne, 63 placówki edukacyjne, 54 place zabaw
Przeczytaj więcej o lokalizacji
Bydgoszcz to miasto powiatowe będące stolicą woj. kujawsko-pomorskiego. Przepływają tędy rzeki Wisła i Brda. Zabudowa jest zróżnicowana. Śródmieście wyróżnia się zwartym budownictwem i wieloma zabytkowymi kamienicami. Dalej od centrum pojawiają się budynki wielorodzinne, a na obrzeżach miasta liczne domy jednorodzinne. Przy północnej i południowej granicy rozciągają się rozległe tereny zielone, m.in. Las Gdański. Bydgoszcz to ośrodek gospodarczy, akademicki i kulturowy, w którym mieści się kilkanaście szkół wyższych, teatr, filharmonia i opera. Mieszkańcy mają dostęp do bogatej oferty medycznej – działa tu kilkanaście szpitali. Prężnie rozwija się sektor handlowo-usługowy i działa Bydgoski Park Przemysłowo-Technologiczny. Bydgoszcz jest rewelacyjnie skomunikowany z największymi miastami kraju. Znajduje się tu port lotniczy, a liczne drogi wojewódzkie i krajowe zapewniają dogodną komunikację drogową. Na obszarze całego miasta działa komunikacja publiczna.
Opis oferty
Nowe 3-pokojowe mieszkanie na sprzedaż o powierzchni 66,22 m² znajduje się w nowo budowanej inwestycji deweloperskiej Gajowa bud. A na Bartodziejach, ul. Gajowa 18 (2.5 km od centrum Bydgoszczy).
Inwestycja jest realizowana przez Budlex Sp. z o.o.
Cała inwestycja składa się z 3 budynków, w których łącznie znajduje się 109 nowych mieszkań.
Na sprzedaż pozostaje 60 ofert o powierzchni od 31 do 133 m².
W budynkach jest 6 kondygnacji naziemnych oraz 1 kondygnacja podziemna.
Inwestycja Gajowa bud. A jest w trakcie budowy z planowanym na 4 kw. 2026 roku terminem oddania do użytkowania.
Nowe mieszkanie o oznaczeniu 13 znajduje się na 3 piętrze i jest 1-poziomowe. Pomieszczenia mają od 260 do 280 centymetrów wysokości. W mieszkaniu znajdują się 3 pokoje.
Dla przyszłych mieszkańców Gajowa bud. A deweloper przewidział miejsca postojowe podziemne, miejsca postojowe naziemne.
Dzięki temu przyszli właściciele nie będą musieli poszukiwać wolnej przestrzeni parkingowej. Dodatkowo, miejsce postojowe w garażu podziemnym zabezpiecza przed niekorzystnymi warunkami atmosferycznymi.
Opis Inwestycji
Tereny zielone
Przestrzeń w dobrej formie to wartość, która wybiega daleko w przyszłość i nigdy nie straci na znaczeniu. Dlatego wybór adresu GAJOWA to doskonała decyzja - zarówno w kontekście jakości życia Twoich bliskich, jak i w sensie inwestycyjnym. Bez względu na to, który aspekt jest dla Ciebie ważniejszy - zawsze warto skorzystać z przestrzeni w dobrej formie.
Dbałość o detal towarzyszy każdemu aspektowi projektu GAJOWA. Utrzymany w nowoczesnym, minimalistycznym stylu design w połączeniu z nowoczesnymi materiałami wysokiej jakości tworzą kompozycję o doskonałej funkcjonalności i ponadczasowej stylistyce.
Mieszkanie znajduje się w inwestycji Gajowa bud. A, w której znajduje się w sprzedaży jeszcze 37 podobnych nowych mieszkań.
Budlex Sp. z o.o.
Strona internetowa inwestycjiAdres biura sprzedaży:
ul. Jatki 4, BydgoszczGodziny otwarcia biura sprzedaży:
- Poniedziałek: 09:00 - 17:00
- Wtorek: 09:00 - 17:00
- Środa: 09:00 - 17:00
- Czwartek: 09:00 - 17:00
- Piątek: 09:00 - 17:00
Artykuły powiązane:
:format(jpg)/articles/gallery/image/8937/1e5506.jpg)
Jak się mieszka w Toruniu?
Toruń to jedno z najstarszych miast Polski, które łączy wielowiekową tradycję z innowacyjnością i rozwojem. Jak się tu mieszka? Toruń to nie tylko pierniki i Mikołaj Kopernik. Według ogólnopolskiej "Diagnozy Społecznej", opracowanej przez Polskie Towarzystwo Statystyczne to jedno z 4...
18 sierpnia 2017
Aneta Filipczak





