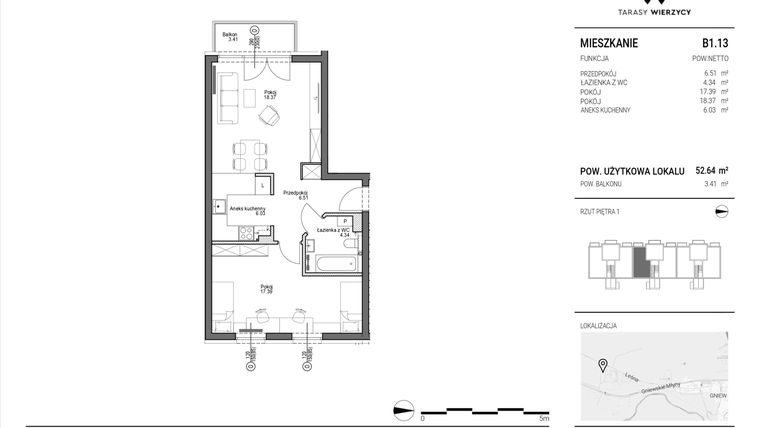
Mieszkanie na sprzedaż 2 pokoje o powierzchni 52,54 m² numer B1.13
Inwestycja:
Tarasy WierzycyDeweloper:
Activa AP Andrzej Pastuszka Sp. K.
Inwestycja:
Tarasy WierzycyDeweloper:
Activa AP Andrzej Pastuszka Sp. K.Gniew, ul. Leśna 21
Gniew, ul. Leśna 21
Oddanie
Gotowe
Ilość pokoi
2 pokoje
Metraż
52,54 m²
Piętro
1 piętro
Strona świata
północ, południe
Dodatkowe
Balkon
Kuchnia
otwarta kuchnia
Wysokość
275 cm wysokości
Poziomy
1 poziom
Oznaczenie oferty
B1.13

Raport o deweloperze
Poznaj dewelopera bliżej! Pobierz raport, w którym znajdziesz kluczowe informacje o firmie, jej doświadczeniu, nagrodach oraz aktualnych i zrealizowanych inwestycjach.
Budynek i otoczenie
Miejsca postojowe | |
|---|---|
Standard wykończenia | standard deweloperski Ogrzewanie gazowe |
Realizacja inwestycji | rozpoczęcie budowy w 3 kw. 2023 roku, inwestycja została oddana do użytkowania w 3 kw. 2025 roku |
Udogodnienia | informacja u dewelopera |
Przyroda | w okolicy inwestycji znajduje się las |
Charakterystyka energetyczna nieruchomości | informacja u dewelopera |
Rezerwacja i finanse
Rodzaj własności | Odrębna własność z własnością gruntu |
|---|---|
Wysokość czynszu | informacja u dewelopera |
Warunki rezerwacji | Informacja u dewelopera |
Zabezpieczenie środków | Otwarty mieszkaniowy rachunek powierniczy i gwarancję bankową |
Postępy i zdjęcia z budowy
Zobacz na jakim etapie budowy jest ta inwestycja
Lokalizacja inwestycji
Przystanek Autobusowy - 130 m
Dojazd do centrum Starogardu Gdańskiego: pokaż
W pobliżu 1 km od tej inwestycji znajdują się:
2 obiekty sportowe
Przeczytaj więcej o lokalizacji
Powiat tczewski leży na południowym wschodzie woj. pomorskiego i zajmuje teren o powierzchni 697 km2. Region zamieszkuje 118,5 tys. osób. Stolicą jest Tczew, a poza nim na powiat składają się trzy gminy wiejskie i dwie miejsko-wiejskie. Wschodnią granicę powiatu wyznacza Wisła, od północy region wchodzi na Żuławy Wiślane, a od południa ograniczony jest kompleksami leśnymi. Zabudowa dzieli się na tę zurbanizowaną, ale małomiasteczkową oraz typowo wiejską. Powiat ma swój szpital i niemal 40 przychodni lekarskich. W regionie działa przeszło 80 szkół. Styczność z kulturą można mieć, dzięki kinu, amfiteatrowi, dwóm muzeom oraz domom i ośrodkom kultury. Za rozwój sportu odpowiadają jednostki miejskie i gminne, w tym Tczewskie Centrum Sportu i Rekreacji. Powiat leży na węźle komunikacyjnym, w którym krzyżują się drogi krajowe nr 22 i 91. Biegnie tędy autostrada A1, która jest częścią europejskiej E75. W regionie działają linie PKS i PKP oraz Szybka Kolej Miejska.
Opis oferty
Nowe 2-pokojowe mieszkanie na sprzedaż o powierzchni 52,54 m² znajduje się w nowo budowanej inwestycji deweloperskiej Tarasy Wierzycy w Gniewie, ul. Leśna 21 (19.9 km od Starogardu Gdańskiego).
Inwestycja jest realizowana przez Activa AP Andrzej Pastuszka Sp. K.
Cała inwestycja składa się z 1 budynku, w którym łącznie znajduje się 27 nowych mieszkań.
Na sprzedaż pozostaje 17 ofert o powierzchni od 29 do 53 m².
W budynku są 3 kondygnacje naziemne. Budynek nie posiada kondygnacji podziemnych.
Inwestycja Tarasy Wierzycy została wybudowana i oddana do użytkowania w 3 kw. 2025 roku.
Nowe mieszkanie o oznaczeniu B1.13 znajduje się na 1 piętrze i jest 1-poziomowe. Pomieszczenia mają 275 centymetrów wysokości. W mieszkaniu znajdują się 2 pokoje.
Okna w mieszkaniu wychodzą na północ, południe.
Północna ekspozycja to idealny wybór dla osób ceniących przytulne i klimatyczne wnętrza. Delikatne, rozproszone światło sprzyja harmonii i stwarza doskonałe warunki do relaksu lub pracy. Okna na północ zapewnią równomierne oświetlenie przez cały dzień.
Okna wychodzące na południe gwarantują maksymalną ilość naturalnego światła, co czyni wnętrza jasnymi i ciepłymi. Dodatkowo południowa ekspozycja pomaga obniżyć koszty ogrzewania w zimie. Okna na południe są idealne dla osób pragnących cieszyć się jasnym otoczeniem, które sprzyja dobremu samopoczuciu oraz pozytywnej energii.
Dla przyszłych mieszkańców Tarasy Wierzycy deweloper przewidział miejsca postojowe naziemne.
Dzięki temu przyszli właściciele nie będą musieli poszukiwać wolnej przestrzeni parkingowej.
Mieszkanie znajduje się w inwestycji Tarasy Wierzycy, w której znajduje się w sprzedaży jeszcze 11 podobnych nowych mieszkań.
Activa AP Andrzej Pastuszka Sp. K.
Strona internetowa inwestycjiAdres biura sprzedaży:
ul. Obrońców Wybrzeża 2B (1 piętro) 83-000 Pruszcz GdańskiGodziny otwarcia biura sprzedaży:
- Poniedziałek: 10:00 - 18:00
- Wtorek: 08:30 - 16:30
- Środa: 08:30 - 16:30
- Czwartek: 08:30 - 16:30
- Piątek: 08:30 - 16:30





