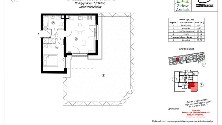
Mieszkanie na sprzedaż 2 pokoje o powierzchni 40,22 m² numer 2G.25
Oferta archiwalna
Inwestycja:
Zielone Zamienie IXDeweloper:
White Stone Development sp. z o.o.
Inwestycja:
Zielone Zamienie IXDeweloper:
White Stone Development sp. z o.o.piaseczyński, Zamienie, ul. Czekoladowa
piaseczyński, Zamienie, ul. Czekoladowa
Nieruchomość została sprzedana
Zobacz pozostałe mieszkania w inwestycji Zielone Zamienie IX lub inne propozycje w Zamieniu
Najbliższe inwestycje
- Żyj bezpiecznie i komfortowo! Zielone Zamienie X to kolejny etap cieszącej się dużym zainteresowaniem inwestycji, która tworzy przestronne osiedle nowoczesnych, kameralnych budynków wielorodzinnych o ciekawej architekturze. To wyjątkowe i klimatyczne miejsce zlokalizowane jest w miejscowości Zamienie (gmina Lesznowola), przy ul. Czekoladowej/Herbacianej. Zielona okolica z niską zabudową to
2 kwartał 2027
piaseczyński, Zamienie,
ul. Czekoladowa
2-3 pokoje, Metraż 40-67 m2
- OFERTA SPECJALNA NOWOCZESNY APARTAMENT w NOWEJ WOLI gm. Lesznowola !Planowane zakończenie budowy luty 2026r. Pozwól sobie na luksus mieszkania w podmiejskim zespole willowym, etap 6 inwestycji oferuje nieruchomości o powierzchniach: APARTAMENT 57,1 m2 Apartamenty położone na parterze o powierzchni około 57,1m2 mieszczą: dwie sypialnie, przestronny salon z aneksem kuchennym oraz łazienkę. Do
1 kwartał 2026
piaseczyński, Nowa Wola,
ul. Plonowa 36
3-4 pokoje, Metraż 57-73 m2
- Kameralne, spokojne z mnóstwem zieleni – dokładnie takie będzie Osiedle Sfera w Dawidach Bankowych, zacisznej miejscowości sąsiadującej z warszawskim Ursynowem. To miejsce dla wszystkich osób, które chcą odpocząć od zgiełku i pędu miasta. Stawy położone w sąsiedztwie inwestycji oraz oddalony zaledwie kilka minut drogi urokliwy Rezerwat Przyrody Stawy Raszyńskie idealnie nadają się na spacery,
gotowe
pruszkowski, Dawidy Bankowe,
ul. Oleńki 12
5 pokoi, Metraż 112 m2
Termin oddania
1 kw. 2026
Ilość pokoi
2 pokoje
Metraż
40,22 m²
Piętro
Parter
Powierzchnie dodatkowe
Ogródek
Kuchnia
otwarta kuchnia
Wysokość pomieszczeń
od 260 do 280 cm wysokości
Ilość poziomów
1 poziom
Oznaczenie oferty
2G.25

Raport o deweloperze
Poznaj dewelopera bliżej! Pobierz raport, w którym znajdziesz kluczowe informacje o firmie, jej doświadczeniu, nagrodach oraz aktualnych i zrealizowanych inwestycjach.
Budynek i otoczenie
Miejsca postojowe | |
|---|---|
Standard wykończenia | standard deweloperski |
Realizacja inwestycji | rozpoczęcie budowy w 3 kw. 2024 roku, planowane oddanie do użytkowania w 1 kw. 2026 roku |
Udogodnienia | plac zabaw, teren ogrodzony, internet, TV kablowa, winda, videodomofon |
Przyroda | informacja u dewelopera |
Charakterystyka energetyczna nieruchomości |
|
Rezerwacja i finanse
Rodzaj własności | Odrębna własność z użytkowaniem wieczystym gruntu |
|---|---|
Wysokość czynszu | informacja u dewelopera |
Warunki rezerwacji | Informacja u dewelopera |
Zabezpieczenie środków | informacja u dewelopera |
Lokalizacja inwestycji
Stacja kolejowa - Warszawa Jeziorki - 1469 m
Przystanek Autobusowy - 372 m
Dojazd do centrum Warszawy: pokaż
W pobliżu 1 km od tej inwestycji znajdują się:
4 sklepy, 2 obiekty sportowe, 5 placówek edukacyjnych, 11 placów zabaw
Przeczytaj więcej o lokalizacji
Zielona okolica z niską zabudową to niewątpliwie alternatywa dla ciasnej stolicy, która zapewnia mieszkańcom ciszę i odpoczynek. To miejsce, gdzie żyje się komfortowo i bezpiecznie. Do największych atutów osiedla należy idealna lokalizacja – z dala od zgiełku miasta, wśród zielonej otwartej przestrzeni, w ciszy spokojnego otoczenia, a jednocześnie z wygodnym i szybkim dojazdem do Warszawy. Komfortową komunikację ze stolicą zapewniają bliskość węzła drogi ekspresowej S7, którą można dojechać w zaledwie 12 min. do Galerii Mokotów, przystanki autobusowe, obsługujące m.in. nową linię L33 łączącą Zamienie z oddaloną o 2 km stacją PKP Jeziorki, z której w 9 min. dojedziemy pociągiem do stacji PKP Służewiec i w 30 min. do stacji PKP Warszawa Śródmieście. • Do granicy miasta: 800 m • Dojazd do centrum: 31 minut samochodem • Centrum Piaseczna: 15 minut samochodem • Przystanek autobusowy linii L33: 6 minut spacerem, • Przystanek autobusowy linii 715 i 809 (z połączeniem do metra): 15 min. spacerem, 3 minuty samochodem • Stacja kolejowa PKP Jeziorki: 5 minut samochodem, 30 min. spacerem • Żłobek: 3 minuty samochodem, 10 minut spacerem • Przedszkole: 7 minut spacerem • Szkoła podstawowa: 7 minut spacerem • Boisko: 5 minut spacerem • Żabka: 9 minut spacerem • Biedronka: 7 minut samochodem • Lidl: 8 minut samochodem • ALDI: 12 min. spacerem, 3 min. samochodem • NETTO: 12 min. spacerem, 3 min. samochodem • Lewiatan: 13 minut spacerem • Kawiarnia: 9 minut spacerem • Apteka: 3 minuty samochodem, 10 minut spacerem • Szpital w Piasecznie: 18 minut samochodem • Szpital LuxMed: 10 minut samochodem Okolicę wyróżnia starodrzew oraz zielona otwarta przestrzeń stwarzająca niepowtarzalny klimat miejsca. Dominuje niska zabudowa mieszkaniowa i usługowo-handlowa. Zielona, przestrzenna okolica sprzyja spacerom z rodziną lub pupilem, ale także zachęca aktywnych mieszkańców do wyznaczania nowych tras biegowych i rowerowych. Blisko osiedla znajduje się boisko i klub piłkarski SRS Zamienie. Na terenie gminy Lesznowola działają świetlice Towarzystwa Przyjaciół Dzieci, a Gminny Ośrodek Kultury w Lesznowoli zapewnia organizację życia kulturalnego i artystycznego okolicy. Warunki naturalne sprzyjają turystce i rekreacji. Wielbiciele przyrody docenią okolicę z licznymi rzeczkami czy urokliwymi stawami w Dawidach oraz Rezerwat Przyrody Stawy Raszyńskie w Falentach z ich piękną fauną i florą. Duża popularnością cieszą się tężnie solankowe w pobliskiej Magdalence. Wśród obiektów zabytkowych jest m.in. piękny, wczesnobarokowy pałac w Falentach, otoczony parkiem krajobrazowym.
Powiat piaseczyński znajduje się w środkowej części województwa mazowieckiego i należy do najbogatszych oraz najintensywniej rozwijających się powiatów w Polsce. W jego obrębie znajdują się miasta: Piaseczno, Konstancin-Jeziorna, Góra Kalwaria, Tarczyn oraz 223 wsie. Obszar o powierzchni 621 km2 przecinają liczne rzeki, m.in. Wisła, Jeziorka, Czarna, Utrata, a w ich dolinach występują łąki i torfowiska. Znaczne połacie terenu zajmują lasy, np. Chojnowskie, zaś pejzaż urozmaicają stawy, zalewy i wydmy. Warunki naturalne sprzyjają turystce i rekreacji, toteż w powiecie znajdują się liczne obiekty i kluby sportowe, tereny do jazdy konnej, kąpielisko Zalesie Górne oraz dobrze rozwinięta baza noclegowa i gastronomiczna. Dominuje niska zabudowa mieszkaniowa i usługowo-handlowa, a do obiektów zabytkowych należą m.in. Zamek w Czersku, wille i dwory. Ważne arterie to trasa E77 oraz drogi krajowe: nr 79 i nr 50. Do stolicy kursuje stąd 18 linii autobusowych warszawskiej komunikacji miejskiej.
Opis oferty
Nowe 2-pokojowe mieszkanie na sprzedaż o powierzchni 40,22 m² znajduje się w nowo budowanej inwestycji deweloperskiej Zielone Zamienie IX w Zamieniu, ul. Czekoladowa (0.9 km od Warszawy).
Inwestycja jest realizowana przez White Stone Development sp. z o.o.
Cała inwestycja składa się z 1 budynku, w którym łącznie znajduje się 196 nowych mieszkań.
Na sprzedaż pozostaje 30 ofert o powierzchni od 40 do 67 m².
W budynku są 4 kondygnacje naziemne. Budynek nie posiada kondygnacji podziemnych.
Inwestycja Zielone Zamienie IX jest w trakcie budowy z planowanym na 1 kw. 2026 roku terminem oddania do użytkowania.
Nowe mieszkanie o oznaczeniu 2G.25 znajduje się na parterze i jest 1-poziomowe. Pomieszczenia mają od 260 do 280 centymetrów wysokości. W mieszkaniu znajdują się 2 pokoje.
Dla przyszłych mieszkańców Zielone Zamienie IX deweloper przewidział miejsca postojowe naziemne.
Dzięki temu przyszli właściciele nie będą musieli poszukiwać wolnej przestrzeni parkingowej.
Opis Inwestycji
Pow. dodatkowe
Żyj bezpiecznie i komfortowo!
Zielone Zamienie IX to kolejny etap cieszącej się dużym zainteresowaniem inwestycji, która tworzy przestronne osiedle nowoczesnych, kameralnych budynków wielorodzinnych o ciekawej architekturze. To wyjątkowe i klimatyczne miejsce zlokalizowane jest w miejscowości Zamienie (gmina Lesznowola), przy ul. Czekoladowej.
Na aktualny, IX etap inwestycji składa się 196 mieszkań w dziewięciu trzypiętrowych budynkach. Dużym atutem inwestycji są jasne wnętrza z dużą ilością naturalnego światła, a także duże balkony i wygodne ogródki z zachowanym starodrzewem, o powierzchni do 170 m². Ogromną zaletą jest możliwość kreowania przez mieszkańców zieleni we własnym otoczeniu.
Inwestycja wyposażona jest w miejsca parkingowe przed budynkami. Do każdego mieszkania przypada jedno miejsce parkingowe w cenie!
Na ogrodzonym terenie osiedla zaprojektowano miejsca do odpoczynku oraz bezpieczne place zabaw dla dzieci. Po sąsiedzku znajduje się nowoczesna szkoła, przedszkole oraz obiekty usługowo-handlowe i sportowe.
Mieszkanie znajduje się w inwestycji Zielone Zamienie IX, w której znajduje się w sprzedaży jeszcze 27 podobnych nowych mieszkań.





