Mieszkanie na sprzedaż 3 pokoje o powierzchni 63,52 m² numer B70
Oferta archiwalna
Inwestycja:
Osiedle pod Klonami "Klonowa 11"Deweloper:
P.H.U. Partner
Inwestycja:
Osiedle pod Klonami "Klonowa 11"Deweloper:
P.H.U. PartnerMińsk Mazowiecki, ul. Klonowa 27B
Mińsk Mazowiecki, ul. Klonowa 27B
Nieruchomość została sprzedana
Zobacz pozostałe mieszkania w inwestycji Osiedle pod Klonami "Klonowa 11" lub inne propozycje w Mińsku Mazowieckim
Najbliższe inwestycje
- Osiedle Warszawska 222 jest w miejscu, z którego niedaleko do sklepów i popularnych marketów. W kilka minut można dotrzeć do miejskiego targowiska. W pobliżu również liczne lokale gastronomiczne, szpital, apteki, paczkomaty i poczta. Dużym udogodnieniem dla rodzin z dziećmi będzie komfortowy dostęp do placówek edukacyjno-opiekuńczych. Dogodne i szybkie połączenia komunikacyjne oraz dopracowane
Warszawska 222
od 361 160 zł
gotowe
Mińsk Mazowiecki,
ul. Warszawska 222
1-5 pokoi, Metraż 29-102 m2
- Inwestycja zlokalizowana w centrum Mińska Mazowieckiego przy ul. Piłsudskiego 38 z przyjazną przestrzenią miejską z licznymi lokalami usługowymi. Bliskość przedszkoli, szkół i punktów handlowych ułatwia codzienne obowiązki. Bardzo dobra komunikacja umożliwia sprawny kontakt z aglomeracją warszawską. Budynek i mieszkania Budynek zaprojektowany z dbałością o wygodę mieszkańców, przy użyciu
Osiedle BALTICA
od 332 785 zł
2 kwartał 2026
Mińsk Mazowiecki,
ul. Józefa Piłsudskiego 38
1-4 pokoje, Metraż 27-92 m2
- Nowo powstała inwestycja mieszkaniowa w centrum Mińska Mazowieckiego to nowoczesny kompleks, który oferuje 113 mieszkań jedno-, dwu- i trzypokojowych. Budynki wyróżniają się ciemną elewacją, która nadaje im elegancki i nowoczesny wygląd, doskonale komponując się z miejskim krajobrazem. Przestronne loggie i balkony stanowią integralną część każdego mieszkania, oferując dodatkową przestrzeń do
Daszyńskiego Square etap 1
od 423 690 zł
gotowe
Mińsk Mazowiecki,
ul. Ignacego Daszyńskiego 8
1 pokój, Metraż 29-46 m2
Termin oddania
Gotowe
Ilość pokoi
3 pokoje
Metraż
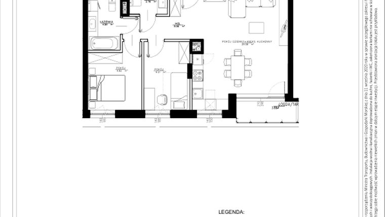
63,52 m²
Piętro
4 piętro
Strona świata
zachód
Kuchnia
otwarta kuchnia
Wysokość pomieszczeń
265 cm wysokości
Ilość poziomów
1 poziom
Oznaczenie oferty
B70

Raport o deweloperze
Poznaj dewelopera bliżej! Pobierz raport, w którym znajdziesz kluczowe informacje o firmie, jej doświadczeniu, nagrodach oraz aktualnych i zrealizowanych inwestycjach.
Budynek i otoczenie
Miejsca postojowe | |
|---|---|
Komórki lokatorskie | dostępne: wielkość: 1,7-17 m2;
komórka lokatorska / zaplecze na poziomie garażu – 5 000 zł/m²– zakup obligatoryjny;
informujemy, że w przypadku zakupu mieszkania z zapleczem, obowiązkowy jest zakup miejsca postojowego w hali garażowej (podziemnego). |
Standard wykończenia | standard deweloperski Ogrzewanie miejskie |
Realizacja inwestycji | rozpoczęcie budowy w 3 kw. 2023 roku, inwestycja została oddana do użytkowania w 1 kw. 2025 roku |
Udogodnienia | winda, rowerownia |
Przyroda | w okolicy inwestycji znajduje się las |
Charakterystyka energetyczna nieruchomości |
|
Rezerwacja i finanse
Rodzaj własności | Odrębna własność z własnością gruntu |
|---|---|
Wysokość czynszu | informacja u dewelopera |
Warunki rezerwacji | Informacja u dewelopera |
Zabezpieczenie środków | Zamknięty mieszkaniowy rachunek powierniczy |
Lokalizacja inwestycji
Stacja kolejowa - Mińsk Mazowiecki Anielina - 761 m
Przystanek Autobusowy - 158 m
Dojazd do centrum: pokaż
W pobliżu 1 km od tej inwestycji znajdują się:
4 sklepy, 5 obiektów sportowych, 3 placówki medyczne, 5 placówek edukacyjnych, 5 placów zabaw
Przeczytaj więcej o lokalizacji
Mińsk Mazowiecki to miasto we wschodniej części województwa mazowieckiego, położone w odległości 38 km od centrum Warszawy. Na obszarze o powierzchni ok. 13 km2 zamieszkuje prawie 40 tys. mieszkańców. W mieście dominuje niska zabudowa handlowo-usługowa i mieszkaniowa, na którą składają się bloki o 2 lub 4 kondygnacjach i domy jednorodzinne. Występuje tutaj zarówno dawne drewniane budownictwo, jak i socrealistyczne czy nowoczesne obiekty. Zabytkami są stylowe wille, kamienice i pałace, np. Pałac Dernałowiczów i Pałac Łubieńskich. W części południowej znajdują się zakłady przemysłowe, m.in. Fabryka Urządzeń Dźwigowych, Harper Hygienics i zakłady obuwia Bartek. Zieleń miejska to skwery i tereny leśno-parkowe, jak Park Dernałowiczów czy Leśnictwo Stankowizna, a także łąki i lasy należące do Mińskiego Obszaru Chronionego Krajobrazu.
Opis oferty
Nowe 3-pokojowe mieszkanie na sprzedaż o powierzchni 63,52 m² znajduje się w nowo budowanej inwestycji deweloperskiej Osiedle pod Klonami "Klonowa 11" w Mińsku Mazowieckim, ul. Klonowa 27B (1.4 km od centrum Mińska Mazowieckiego).
Inwestycja jest realizowana przez P.H.U. Partner.
Cała inwestycja składa się z 1 budynku, w którym łącznie znajdują się 73 nowe mieszkania.
Na sprzedaż pozostaje 9 ofert o powierzchni od 51 do 84 m².
W budynku jest 5 kondygnacji naziemnych oraz 1 kondygnacja podziemna.
Inwestycja Osiedle pod Klonami "Klonowa 11" została wybudowana i oddana do użytkowania w 1 kw. 2025 roku.
Nowe mieszkanie o oznaczeniu B70 znajduje się na 4 piętrze i jest 1-poziomowe. Pomieszczenia mają 265 centymetrów wysokości. W mieszkaniu znajdują się 3 pokoje.
Okna w mieszkaniu wychodzą na zachód.
Zachodnia ekspozycja to gwarancja intensywnego popołudniowego światła, które nadaje wnętrzom przytulności i ciepła. Idealne dla miłośników słonecznych wieczorów, którzy pragną cieszyć się pięknymi zachodami słońca we własnym domu. Zachodnie światło podkreśla kolory i faktury w aranżacji wnętrz, tworząc atmosferę sprzyjającą relaksowi po długim dniu.
Dla przyszłych mieszkańców Osiedle pod Klonami "Klonowa 11" deweloper przewidział miejsca postojowe podziemne, miejsca postojowe naziemne.
Dzięki temu przyszli właściciele nie będą musieli poszukiwać wolnej przestrzeni parkingowej. Dodatkowo, miejsce postojowe w garażu podziemnym zabezpiecza przed niekorzystnymi warunkami atmosferycznymi.
Opis Inwestycji
Osiedle pod Klonami „Klonowa 11” to nowoczesny, kameralny budynek mieszkalny o wysokim standardzie, który powstaje w jednej z atrakcyjnych części Mińska Mazowieckiego. Inwestycja obejmuje 4-kondygnacyjny budynek z garażem podziemnym, oferujący łącznie 73 funkcjonalne mieszkania o różnorodnych układach – od kawalerek po przestronne, 4-pokojowe apartamenty. Lokale mieszkalne mają powierzchnię od 26 m² do 85 m², co pozwala na dopasowanie oferty do potrzeb zarówno singli, jak i rodzin.
Mieszkania:
Osiedle pod Klonami „Klonowa 11” oferuje mieszkania o zróżnicowanych metrażach i rozkładach:
1-pokojowe (od 26 m²)
2-pokojowe (od 36m²)
3-pokojowe (od 50 m²)
4-pokojowe (od 81 m²)
Każde mieszkanie jest zaprojektowane z myślą o komforcie mieszkańców, z jasnymi pomieszczeniami, przestronnymi balkonami oraz możliwością dowolnej aranżacji wnętrz. Do każdego lokalu przynależy obowiązkowo miejsce postojowe w garażu podziemnym lub naziemnym oraz komórka lokatorska lub zaplecze.
Lokalizacja i Otoczenie:
Osiedle pod Klonami „Klonowa 11” znajduje się przy ul. Klonowej 27 B, w cichej i zielonej części Mińska Mazowieckiego, która zapewnia doskonały dostęp do infrastruktury miejskiej:
Szkoły: Szkoła Podstawowa nr 1 – 1,2 km, Zespół Szkół Ekonomicznych – 1,5 km
Przedszkola: Przedszkole Publiczne nr 3 – 0,9 km, Przedszkole Niepubliczne „Kubuś Puchatek” – 1,1 km
Żłobki: Żłobek Miejski „Bajkowy Świat” – 1,3 km
Sklepy: Biedronka – 0,8 km, Lidl – 1,0 km, Galeria Handlowa „Stacja Mińsk” – 1,5 km
Środki Transportu: Przystanek autobusowy – 0,4 km, Stacja PKP Mińsk Mazowiecki – 1,7 km
Podsumowanie:
Osiedle pod Klonami „Klonowa 11” to idealne miejsce dla osób poszukujących komfortowego i bezpiecznego mieszkania w atrakcyjnej lokalizacji. Dzięki połączeniu nowoczesnej architektury, przemyślanych rozwiązań funkcjonalnych oraz doskonałego położenia, inwestycja ta stanowi świetną propozycję zarówno dla rodzin, jak i inwestorów. Planowany termin zakończenia budowy to I kwartał 2025 roku, co pozwala na dostosowanie harmonogramu finansowego do indywidualnych potrzeb kupujących.
Zachęcamy do kontaktu i umówienia się na spotkanie w celu zapoznania się z pełną ofertą!
Mieszkanie znajduje się w inwestycji Osiedle pod Klonami "Klonowa 11", w której znajduje się w sprzedaży jeszcze 5 podobnych nowych mieszkań.





