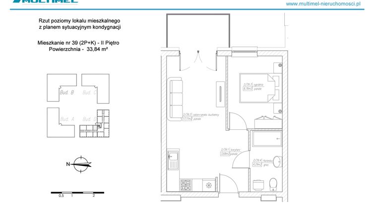
Mieszkanie na sprzedaż 2 pokoje o powierzchni 33,84 m² numer 39D
Inwestycja:
Dominów RynekDeweloper:
Multimel
Inwestycja:
Dominów RynekDeweloper:
Multimellubelski, Dominów, ul. Rynek
lubelski, Dominów, ul. Rynek
Termin oddania
4 kw. 2026
Ilość pokoi
2 pokoje
Metraż
33,84 m²
Piętro
2 piętro
Strona świata
wschód
Powierzchnie dodatkowe
Balkon
Kuchnia
otwarta kuchnia
Wysokość pomieszczeń
260 cm wysokości
Ilość poziomów
1 poziom
Oznaczenie oferty
39D

Raport o deweloperze
Poznaj dewelopera bliżej! Pobierz raport, w którym znajdziesz kluczowe informacje o firmie, jej doświadczeniu, nagrodach oraz aktualnych i zrealizowanych inwestycjach.
Budynek i otoczenie
Miejsca postojowe | |
|---|---|
Komórki lokatorskie | dostępne (12): nieobowiązkowy zakup; 3 m2 |
Standard wykończenia | standard deweloperski Ogrzewanie piec gazowy |
Realizacja inwestycji | rozpoczęcie budowy w 1 kw. 2025 roku, planowane oddanie do użytkowania w 4 kw. 2026 roku |
Udogodnienia | teren ogrodzony, winda, plac zabaw, monitoring, boisko, klimatyzacja, korty tenisowe, rowerownia, inteligentny dom, siłownia plenerowa, sala fitness, wózkarnia, instalacja fotowoltaiczna, miejsce do ładowania samochodów elektrycznych |
Przyroda | w okolicy inwestycji znajduje się park |
Charakterystyka energetyczna nieruchomości | informacja u dewelopera |
Rezerwacja i finanse
Rodzaj własności | Odrębna własność z własnością gruntu |
|---|---|
Wysokość czynszu | planowany czynsz będzie w wysokości od 4 do 4 zł/m² (czyli od 135 do 135 zł za całość) |
Warunki rezerwacji | rezerwacja bezpłatna |
Zabezpieczenie środków | Otwarty mieszkaniowy rachunek powierniczy |
Zdjęcia z budowy
Zobacz na jakim etapie budowy jest ta inwestycja
Lokalizacja inwestycji
Przystanek Autobusowy - 188 m
Dojazd do centrum Lublina: pokaż
W pobliżu 1 km od tej inwestycji znajdują się:
2 kawiarnie i restauracje, 4 sklepy, 7 obiektów sportowych, 1 placówka medyczna, 6 placówek edukacyjnych, 3 place zabaw
Przeczytaj więcej o lokalizacji
Powiat lubelski to region o powierzchni 1680 km2, składający się 16 gmin, w których leżą dwa miasta i ponad 350 wsi. Obszar leży na Wyżynie Lubelskiej, w dorzeczu Wisły i zamieszkiwany jest przez ok. 145 000 osób. Poza Wisłą, płyną tędy rzeki Bystrzyca i Wieprza. Znajdują się tu dwa parki krajobrazowe i cztery obszary krajobrazu chronionego. Stopień urbanizacji jest niewielki, co gwarantuje spokój i ciszę. Niemniej jednak infrastruktura społeczna dostosowana jest do potrzeb mieszańców. Łącznie działa tu blisko 100 jednostek oświatowych, dwa szpitale powiatowe. Rozwinięte jest zaplecze sportowe i kulturalne, a mieszkańcy mają swobodny dostęp do sklepów wielobranżowych i specjalistycznych. W powiecie dobrze rozwinięta jest infrastruktura drogowa, a najważniejszymi trasami są europejska E373 oraz drogi krajowe nr 19 i 82. Biegną tędy cztery drogi wojewódzkie, a ok. 3 km od granicy powiatu leży port lotniczy.
Opis oferty
Nowe 2-pokojowe mieszkanie na sprzedaż o powierzchni 33,84 m² znajduje się w nowo budowanej inwestycji deweloperskiej Dominów Rynek Dominowie, ul. Rynek (0.7 km od Lublina).
Inwestycja jest realizowana przez Multimel.
Cała inwestycja składa się z 2 budynków, w których łącznie znajduje się 78 nowych mieszkań.
Na sprzedaż pozostaje 20 ofert o powierzchni od 34 do 68 m².
W budynkach są 3 kondygnacje naziemne oraz 1 kondygnacja podziemna.
Inwestycja Dominów Rynek jest w trakcie budowy z planowanym na 4 kw. 2026 roku terminem oddania do użytkowania.
Nowe mieszkanie o oznaczeniu 39D znajduje się na 2 piętrze i jest 1-poziomowe. Pomieszczenia mają 260 centymetrów wysokości. W mieszkaniu znajdują się 2 pokoje.
Do mieszkania przewidziano możliwość zakupu komórki lokatorskiej, w cenie 18 000 zł, którą można zagospodarować na spiżarnię, warsztat czy składzik.
Okna w mieszkaniu wychodzą na wschód.
Wschodnia orientacja zapewnia dostęp do łagodnego porannego światła, idealnego dla rozpoczęcia dnia pełnego energii. Wnętrza pozostają jasne, ale nieprzegrzane, co sprzyja utrzymaniu komfortowej temperatury. Przebywanie w pomieszczeniu z oknami na wschód inspiruje do działania i pozytywnie wpływa na poranny rytuał.
Dla przyszłych mieszkańców Dominów Rynek deweloper przewidział miejsca postojowe podziemne, miejsca postojowe naziemne.
Dzięki temu przyszli właściciele nie będą musieli poszukiwać wolnej przestrzeni parkingowej. Dodatkowo, miejsce postojowe w garażu podziemnym zabezpiecza przed niekorzystnymi warunkami atmosferycznymi.
Opis Inwestycji
Pow. dodatkowe
Inwestycja Dominów Rynek skupia się na estetyce i funkcjonalności. Kompleks będzie składał się z czterech budynków oznaczonych literami A, B, C i D.
Każdy z budynków oferuje po 39 mieszkań, zróżnicowanych pod względem metrażu i rozkładu pomieszczeń:
Atrakcyjna lokalizacja
Osiedle Dominów Rynek to nowoczesna inwestycja Multimel Invest, łącząca miejski komfort z naturą. Położone w centralnej części Dominowa na obrzeżach Lublina, oferuje harmonijną przestrzeń blisko terenów zielonych, sprzyja zdrowemu „city-life balance”.
Bliskość usług
Centralne położenie w Dominowie zapewnia bliskość usług takich jak: przychodnia, apteka, sklepy, przedszkola, żłobki, szkoła w realizacji, paczkomaty, poczta, wydział komunikacji oraz Urzędu Gminy Głusk. W okolicy znajdują się bulwary nad Czerniejówką, tereny rekreacyjne, Arena Głusk, stadnina koni, place zabaw i siłownie plenerowe. Trasy pieszo-rowerowe i zielone strefy wypoczynku tworzą funkcjonalne i atrakcyjne środowisko do życia.
Komunikacja miejska i dojazd do centrum Lublina
Dostępne są trzy linie miejskie MPK nr 3, 16 i 17.
Osiedle ma dwie drogi dojazdowe do centrum Lublina – czas dojazdu samochodem do centrum Lublina ok. 20 min.
Oferta mieszkań
Osiedle oferuje kawalerki, mieszkania 2-, 3- i 4-pokojowe od 33 m2 do 67 m2 w niskiej dwupiętrowej zabudowie gwarantując dużą przestrzeń między budynkami oraz ponadczasową nowoczesną architekturę.
Wysoki standard
Inwestycja wyróżnia się wysoką jakością wykonania, wykorzystaniem ekologicznych materiałów oraz nowoczesnych rozwiązań. Budynki wyposażone są w przestronne hole, duże windy oraz podziemne garaże. Indywidualne systemy grzewcze, zapewniają komfort, zdrowy mikroklimat iw ekonomiczną eksploatację mieszkań.
Konkurencyjność
Dominów Rynek to połączenie wysokiej jakości oraz konkurencyjne ceny na rynku lubelskim. Dodatkowo niskie koszty eksploatacji oraz niskie czynsze znacznie uatrakcyjniają ofertę. Różnorodne układy mieszkań pozwalają dopasować lokal do indywidualnych potrzeb Nabywcy.
Mieszkanie znajduje się w inwestycji Dominów Rynek, w której znajduje się w sprzedaży jeszcze 7 podobnych nowych mieszkań.
Multimel
Strona internetowa inwestycjiAdres biura sprzedaży:
ul. Dominów 130A, 20-388 LublinGodziny otwarcia biura sprzedaży:
- Poniedziałek: 08:00 - 16:00
- Wtorek: 08:00 - 16:00
- Środa: 08:00 - 16:00
- Czwartek: 08:00 - 16:00
- Piątek: 08:00 - 16:00





