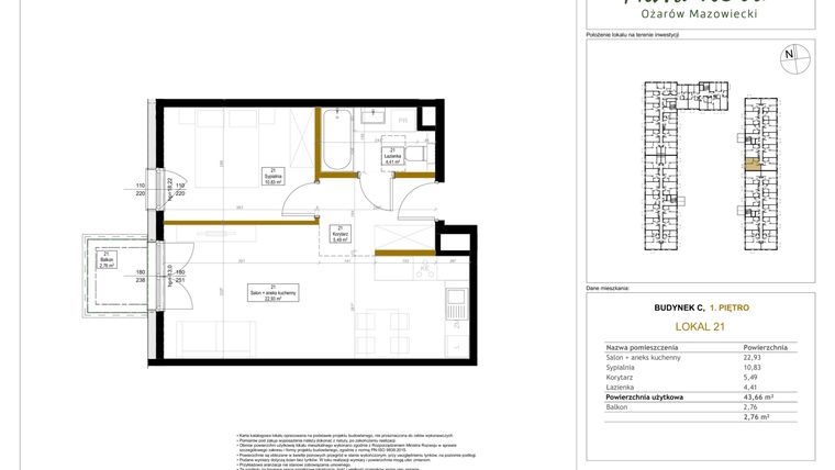
Mieszkanie na sprzedaż 2 pokoje o powierzchni 43,66 m² numer 21
Promocja
Inwestycja:
Aura Nova etap IIDeweloper:
Mill-Yon Sp. z o.o.
Inwestycja:
Aura Nova etap IIDeweloper:
Mill-Yon Sp. z o.o.Ożarów Mazowiecki, ul. Kapucka
Ożarów Mazowiecki, ul. Kapucka
Oddanie
1 kw. 2026
Ilość pokoi
2 pokoje
Metraż
43,66 m²
Piętro
1 piętro
Dodatkowe
Balkon
Kuchnia
otwarta kuchnia
Wysokość
od 260 do 280 cm wysokości
Poziomy
1 poziom
Oznaczenie oferty
21

Raport o deweloperze
Poznaj dewelopera bliżej! Pobierz raport, w którym znajdziesz kluczowe informacje o firmie, jej doświadczeniu, nagrodach oraz aktualnych i zrealizowanych inwestycjach.
Budynek i otoczenie
Miejsca postojowe | |
|---|---|
Komórki lokatorskie | dostępne |
Standard wykończenia | standard deweloperski |
Realizacja inwestycji | rozpoczęcie budowy w 2 kw. 2024 roku, planowane oddanie do użytkowania w 1 kw. 2026 roku |
Udogodnienia | plac zabaw, internet, przystosowane dla niepełnosprawnych, TV kablowa, usługi w budynku, winda, własna kotłownia, patio / dziedziniec |
Przyroda | w okolicy inwestycji znajduje się park, staw |
Charakterystyka energetyczna nieruchomości |
|
Rezerwacja i finanse
Rodzaj własności | Odrębna własność z własnością gruntu |
|---|---|
Wysokość czynszu | informacja u dewelopera |
Warunki rezerwacji | Informacja u dewelopera |
Zabezpieczenie środków | Otwarty mieszkaniowy rachunek powierniczy |
Postępy i zdjęcia z budowy
Zobacz na jakim etapie budowy jest ta inwestycja
Lokalizacja inwestycji
Stacja kolejowa - Ożarów Mazowiecki - 989 m
Przystanek Autobusowy - 565 m
Dojazd do centrum Warszawy: pokaż
W pobliżu 1 km od tej inwestycji znajdują się:
5 kawiarni i restauracji, 11 sklepów, 10 obiektów sportowych, 2 placówki medyczne, 11 placówek edukacyjnych, 3 place zabaw
Przeczytaj więcej o lokalizacji
Ożarów Mazowiecki usytuowany jest w centralnej części województwa mazowieckiego, w odległości 16 km od Warszawy. W okolicach miasta dominują grunty rolne, zaś w pobliskich Broniszach znajduje się – największy w kraju – Rolno-Spożywczy Rynek Hurtowy. Ożarów zajmuje obszar o powierzchni prawie 6 km2, który przecina Kanał Ożarowski. Bazę mieszkaniową dla ponad 10 tys. mieszkańców stanowią osiedla niskich bloków oraz domy jedno- i wielorodzinne. Dynamicznie rozwija się tutaj infrastruktura techniczna i zabudowa przemysłowa, a do większych zakładów produkcyjnych należą: Daimler Chrysler Automotive Polska, Vigo System SA i WB Electronics. Teren, na którym dawniej znajdowała się Fabryka Kabli, został objęty Specjalną Strefą Ekonomiczną.
Opis oferty
Nowe 2-pokojowe mieszkanie na sprzedaż o powierzchni 43,66 m² znajduje się w nowo budowanej inwestycji deweloperskiej Aura Nova etap II w Ożarowie Mazowieckim, ul. Kapucka (4.5 km od Warszawy).
Inwestycja jest realizowana przez Mill-Yon Sp. z o.o.
Cała inwestycja składa się z 2 budynków, w których łącznie znajdują się 193 nowe mieszkania.
Na sprzedaż pozostaje 58 ofert o powierzchni od 31 do 75 m².
W budynkach są 4 kondygnacje naziemne oraz 1 kondygnacja podziemna.
Inwestycja Aura Nova etap II jest w trakcie budowy z planowanym na 1 kw. 2026 roku terminem oddania do użytkowania.
Nowe mieszkanie o oznaczeniu 21 znajduje się na 1 piętrze i jest 1-poziomowe. Pomieszczenia mają od 260 do 280 centymetrów wysokości. W mieszkaniu znajdują się 2 pokoje.
Dla przyszłych mieszkańców Aura Nova etap II deweloper przewidział miejsca postojowe podziemne, miejsca postojowe naziemne.
Dzięki temu przyszli właściciele nie będą musieli poszukiwać wolnej przestrzeni parkingowej. Dodatkowo, miejsce postojowe w garażu podziemnym zabezpiecza przed niekorzystnymi warunkami atmosferycznymi.
Opis Inwestycji
Pow. dodatkowe
Aura Nova to wyjątkowa inwestycja zlokalizowana w doskonale skomunikowanej z Warszawą, dynamicznie rozwijającej się części Ożarowa Mazowieckiego. Znajdziesz tutaj wszystko, czego potrzebujesz do wygodnego życia. Kameralna, niska zabudowa, funkcjonalne mieszkania, bliskość usług, terenów zielonych oraz rekreacyjnych, a także wygodny dostęp do stolicy.
Położenie inwestycji zapewnia możliwość korzystania z zaplecza edukacyjnego, rekreacyjno-sportowego kulturalnego i handlowo-usługowego.
W najbliższej okolicy znajdują się przedszkola, szkoły podstawowe, urząd miasta, ośrodek sportowy z pływalnią oraz dom kultury, a także sklep wielobranżowy i supermarket.
Codzienne dojazdy do stolicy, już nigdy nie będą kojarzyć się z korkami. Do Centrum Warszawy można stąd łatwo dotrzeć koleją, z pobliskiej stacji PKP Ożarów, w zaledwie 24 minuty. W niedalekiej odległości od inwestycji znajduje się także przystanek autobusowy linii 713, kursującej między Ożarowem a Warszawą.
Bliskie sąsiedztwo terenów zielonych sprzyja rekreacji oraz odpoczynkowi na łonie natury. Na terenie gminy znajduje się Park Ołtarzew o charakterze leśnym, a także Rezerwat Przyrody Wolica z bogatą fauną i florą.
Atrakcją tego rejonu jest pochodzący z XIX wieku Dwór w Duchnicach oraz zabytkowy kompleks Gołaszew, z zachowanymi elementami neorenesansowej architektury.
Mieszkanie znajduje się w inwestycji Aura Nova etap II, w której znajdują się w sprzedaży jeszcze 43 podobne nowe mieszkania.
Mill-Yon Sp. z o.o.
Strona internetowa inwestycjiAdres biura sprzedaży:
ul. Kapucka 34 lok. 19, 05-850 Ożarów MazowieckiGodziny otwarcia biura sprzedaży:
- Poniedziałek: 10:00 - 18:00
- Wtorek: 10:00 - 18:00
- Środa: 10:00 - 18:00
- Czwartek: 10:00 - 18:00
- Piątek: 10:00 - 18:00
Artykuły powiązane:
:format(jpg)/articles/gallery/image/9455/dzielnice-luksusu-warszawa.jpg)
Dzielnice luksusu w Polsce
W 2025 roku luksusowe apartamenty w Polsce przestają być kojarzone wyłącznie z prestiżem dzielnic takich jak Powiśle w Warszawie czy Salwator w Krakowie. Inwestycji premium przybywa w nowych, szybko zyskujących na wartości lokalizacjach. Coraz więcej miast kreuje przyciągające wymagających nabywców enklawy, oferujące standard ultrapremium. Apartamenty za kilka milionów złotych nie są już tylko domeną stolicy. Dziś o luksusie decydują nie sam metraż i standard wykończenia, ale unikalny klimat dzielnicy. Widać wyraźny trend: ekskluzywne nieruchomości pojawiają się tam, gdzie jeszcze niedawno dominowała zabudowa średniego standardu.
06 sierpnia 2025
Marcin Moneta
:format(jpg)/articles/gallery/image/6970/widok-z-mieszkania_a51930.jpg)
Mieszkanie z widokiem
Góry, morze, jezioro a może park? Jaki widok z okna marzy się Wam najbardziej? Warto odpowiedzieć sobie na to pytanie szukając wymarzonego mieszkania. Bowiem to, co widzimy za szybą, wpływa na nasze samopoczucie i sposób postrzegania świata. Jakie widoki za oknem są najbardziej pożądane? Jak krajobraz wpływa na naszą psychikę? Sprawdź w naszym artykule.
16 maja 2023
Marlena Rzepniewska





