Mieszkanie na sprzedaż 2 pokoje o powierzchni 34,73 m² - numer ZL-4.8514 004 zł14 800 zł/m2Estymowana rata kredytu: 2 600 zł
Estymowana rata kredytu: 2 600 zł
Oferta archiwalna
Inwestycja:
Zielony LewandówDeweloper:
J.W. Construction Holding S.A.
Inwestycja:
Zielony LewandówDeweloper:
J.W. Construction Holding S.A.Warszawa, Białołęka, Grodzisk, ul. Kartograficzna 66A
Warszawa, Białołęka, Grodzisk, ul. Kartograficzna 66A
Nieruchomość została sprzedana
Zobacz pozostałe mieszkania w inwestycji Zielony Lewandów lub inne propozycje na Grodzisku
:format(jpg)/properties/planimagepage/image/1191919/40b2e5.png)
:format(jpg)/offers/offer/None/main_image/zielony-lewandow_3b0e71.jpg)
1 zdjęcie
Najbliższe inwestycje
Osiedle Młoda Białołęka to kompleksowa inwestycja, która łączy w sobie wszystko to, czego potrzebujesz do komfortowego życia. Rozpoczynamy II etap tej ekscytującej podróży, oferując jeszcze więcej możliwości dla naszych przyszłych mieszkańców. W ramach tego etapu zapewniamy szeroki wybór metraży, dostosowanych do wszelkich potrzeb, oraz wyjątkowe udogodnienia, takie jak części wspólne z placemMłoda Białołęka II
od 10 700 zł/m²
gotowe
Warszawa, Białołęka, Grodzisk,
ul. Geodezyjna 72
2-4 pokoje, Metraż 44-73 m2
Nasza inwestycja na Białołęce mieści się w programie Mieszkanie bez wkładu własnego. „Promenada Biała Łąka” to idealny przykład stonowanej, miejskiej architektury, dającej poczucie bezpieczeństwa i prywatności mieszkańcom. Wysoki standard inwestycji gwarantują najlepszej jakości materiały budowlane, wykończeniowe oraz funkcjonalne układy mieszkań. Docelowo będzie to zespół 11 budynków o niskiejPromenada Biała Łąka
od 10 950 zł/m²
gotowe
Warszawa, Białołęka, Grodzisk,
ul. Konik Polny
3-4 pokoje, Metraż 59-63 m2
Poznaj osiedle juu Osiedle juu powstaje w kameralnej części Białołęki przy ul. Skarbka z Gór 47. Inwestycja jest nowoczesnym zespołem mieszkaniowym o indywidualnym charakterze zarówno architektonicznym, jak i urbanistycznym. Sprzyja integracji społecznej oraz budowaniu silnych społeczności lokalnych. Projekt charakteryzuje niska 2-piętrowa zabudowa, dbałość o detale i naturalne materiały. WOsiedle Juu
od 13 300 zł/m²
3 kwartał 2026
Warszawa, Białołęka, Grodzisk,
ul. Skarbka z Gór 47
1-4 pokoje, Metraż 30-75 m2
Oddanie
1 kw. 2026
Ilość pokoi
2 pokoje
Metraż
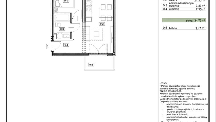
34,73 m²
Piętro
2 piętro
Strona świata
wschód, zachód
Dodatkowe
Balkon
Kuchnia
otwarta kuchnia
Wysokość
od 260 do 280 cm wysokości
Poziomy
1 poziom
Oznaczenie oferty
ZL-4.8
Budynek i otoczenie
Miejsca postojowe
- miejsca postojowe naziemne
Komórki lokatorskie
Standard wykończenia
wykończenie pod klucz
Realizacja inwestycji
Udogodnienia
Przyroda
Charakterystyka energetyczna nieruchomości
Rezerwacja i finanse
Rodzaj własności
Wysokość czynszu
Warunki rezerwacji
Zabezpieczenie środków
Lokalizacja inwestycji
Metro - Kondratowicza - 2846 m
Przystanek Autobusowy - 565 m
Dojazd do centrum: pokaż
W pobliżu 1 km od tej inwestycji znajdują się:
15 kawiarni i restauracji, 19 sklepów, 8 obiektów sportowych, 2 placówki medyczne, 14 placówek edukacyjnych, 24 place zabaw
Przeczytaj więcej o lokalizacji
Białołęka to północna, druga pod względem wielkości powierzchni, dzielnica Warszawy odznaczająca się najszybszym rozwojem. Występują tutaj zarówno osiedla domów jednorodzinnych w północnej części obszaru, jak również wysoka, nowoczesna zabudowa mieszkaniowa. Dużą popularnością nadal cieszą się białołęckie osiedla z wielkiej płyty: Nowy Tarchomin, Nowodwory i Nowe Świdry. W strefie centralnej i południowej rozwija się infrastruktura handlowo-usługowa, więc obszar ten ma szansę stać się czymś więcej, niż kolejną warszawską "sypialnią". Białołęka jest jedną z najspokojniejszych dzielnic, a wypoczynek umożliwiają: kompleksy leśne, parki, rezerwaty przyrody i ścieżki rowerowe. Dogodnym sposobem dojazdu do centrum miasta są tutaj liczne linie autobusowe z pętlą Nowodwory, zaś do głównych arterii dzielnicy należą fragmenty dróg krajowych: ul. Modlińska i Trasa Toruńska, a także ul. Płochocińska.
Opis oferty
Nowe 2-pokojowe mieszkanie na sprzedaż o powierzchni 34,73 m² znajduje się w nowo budowanej inwestycji deweloperskiej Zielony Lewandów na Grodzisku, ul. Kartograficzna 66A (10.1 km od centrum Warszawy).
Inwestycja jest realizowana przez J.W. Construction Holding S.A.
Cała inwestycja składa się z 5 budynków, w których łącznie znajduje się 40 nowych mieszkań.
Inwestycja jest już wyprzedana.
W budynkach są 3 kondygnacje naziemne. Budynek nie posiada kondygnacji podziemnych.
Inwestycja Zielony Lewandów jest w trakcie budowy z planowanym na 1 kw. 2026 roku terminem oddania do użytkowania.
Nowe mieszkanie o oznaczeniu ZL-4.8 znajduje się na 2 piętrze i jest 1-poziomowe. Pomieszczenia mają od 260 do 280 centymetrów wysokości. W mieszkaniu znajdują się 2 pokoje.
Okna w mieszkaniu wychodzą na wschód, zachód.
Wschodnia orientacja zapewnia dostęp do łagodnego porannego światła, idealnego dla rozpoczęcia dnia pełnego energii. Wnętrza pozostają jasne, ale nieprzegrzane, co sprzyja utrzymaniu komfortowej temperatury. Przebywanie w pomieszczeniu z oknami na wschód inspiruje do działania i pozytywnie wpływa na poranny rytuał.
Zachodnia ekspozycja to gwarancja intensywnego popołudniowego światła, które nadaje wnętrzom przytulności i ciepła. Idealne dla miłośników słonecznych wieczorów, którzy pragną cieszyć się pięknymi zachodami słońca we własnym domu. Zachodnie światło podkreśla kolory i faktury w aranżacji wnętrz, tworząc atmosferę sprzyjającą relaksowi po długim dniu.
Dla przyszłych mieszkańców Zielony Lewandów deweloper przewidział miejsca postojowe naziemne.
Dzięki temu przyszli właściciele nie będą musieli poszukiwać wolnej przestrzeni parkingowej.
Cena ofertowa mieszkania wynosi 514 004 zł.
Opis Inwestycji
Pow. dodatkowe
Wykorzystane w budynkach ekorozwiązania docenią ci, którym nieobojętna jest ekologia w życiu codziennym. Zielony Lewandów to projekt zgodny z założeniami zrównoważonego rozwoju na każdym etapie tworzenia budynków – począwszy od projektowania, przez prace konstrukcyjne aż po eksploatację. Zielony Lewandów bazuje na technologii modułowej drewnianej, która jest przyjazna dla środowiska, jak i dla samych mieszkańców.
Do budowy wykorzystywane są materiały podlegające recyklingowi: drewno, wełna mineralna, która zapewnia optymalne właściwości cieplne, oraz płyty gipsowo-włóknowe. Wyprodukowano je w oparciu o naturalne surowce, przy wykorzystaniu biotechnologii bazującej na naturalnych komponentach. Są wolne od formaldehydu, fenolu i akrylu, dodatków, sztucznych barwników oraz substancji rozjaśniających, bez dodatków klejów.
Mieszkanie znajduje się w inwestycji Zielony Lewandów.





