Mieszkanie na sprzedaż 3 pokoje o powierzchni 60,48 m² numer 29
Oferta archiwalna
Inwestycja:
Harmonia bud. M3
Inwestycja:
Harmonia bud. M3Olsztyn, Podleśna, ul. Bydgoska
Olsztyn, Podleśna, ul. Bydgoska
Nieruchomość została sprzedana
Zobacz pozostałe mieszkania w inwestycji Harmonia bud. M3 lub inne propozycje na Podleśnej
Najbliższe inwestycje
- Z szacunku do historii i z myślą o Twojej przyszłości ESPERANTO PARK to jedna z naszych najnowszych propozycji deweloperskich w Olsztynie zlokalizowana na Osiedlu Podleśna przy ul. Zamenhofa. Przeglądając karty historii zainspirowała nas postać Ludwika Zamenhofa. Ludwik Łazarz Zamenhof, właściwie Eliezer Lewi Samenhof, to polski lekarz okulista żydowskiego pochodzenia, inicjator uniwersalnego
Esperanto Park etap II
od 372 255 zł
3 kwartał 2026
Olsztyn, Podleśna,
ul. Ludwika Zamenhofa
2-3 pokoje, Metraż 32-63 m2
Termin oddania
Gotowe
Ilość pokoi
3 pokoje
Metraż
60,48 m²
Piętro
Parter
Powierzchnie dodatkowe
Balkon
Kuchnia
otwarta kuchnia
Wysokość pomieszczeń
270 cm wysokości
Ilość poziomów
1 poziom
Oznaczenie oferty
29

Raport o deweloperze
Poznaj dewelopera bliżej! Pobierz raport, w którym znajdziesz kluczowe informacje o firmie, jej doświadczeniu, nagrodach oraz aktualnych i zrealizowanych inwestycjach.
Budynek i otoczenie
Miejsca postojowe | |
|---|---|
Komórki lokatorskie | dostępne |
Standard wykończenia | standard deweloperski Ogrzewanie miejskie |
Realizacja inwestycji | rozpoczęcie budowy w 3 kw. 2024 roku, inwestycja została oddana do użytkowania w 1 kw. 2026 roku |
Udogodnienia | plac zabaw, teren ogrodzony, winda, rowerownia, wózkarnia |
Przyroda | w okolicy inwestycji znajduje się park, las |
Charakterystyka energetyczna nieruchomości |
|
Rezerwacja i finanse
Rodzaj własności | Odrębna własność z własnością gruntu |
|---|---|
Wysokość czynszu | informacja u dewelopera |
Warunki rezerwacji | Informacja u dewelopera |
Zabezpieczenie środków | Otwarty mieszkaniowy rachunek powierniczy |
Lokalizacja inwestycji
Stacja kolejowa - Olsztyn Główny - 1448 m
Przystanek Tramwajowy - 1632 m
Przystanek Autobusowy - 255 m
Dojazd do centrum: pokaż
W pobliżu 1 km od tej inwestycji znajdują się:
4 kawiarnie i restauracje, 13 sklepów, 13 obiektów sportowych, 12 placówek medycznych, 13 placówek edukacyjnych, 12 placów zabaw
Przeczytaj więcej o lokalizacji
Olsztyn jest stolicą województwa warmińsko-mazurskiego. Znajduje się w nim siedziba władz ziemskiego powiatu olsztyńskiego, kurii archidiecezji warmińskiej i luterańskiej diecezji mazurskiej. Podzielone jest na kilkadziesiąt osiedli - jednostek pomocniczych gminy, które są najniższym, pomocniczym szczeblem samorządu miejskiego. Ich działanie obejmuje załatwianie spraw publicznych o zasięgu lokalnym. Około 30 procent powierzchni całego miasta zajmują lasy. Ponad połowa z tego to zwarty kompleks Lasu Miejskiego, który pełni głównie funkcje terenów rekreacyjno-wypoczynkowych oraz turystyczno-krajoznawczych.
Opis oferty
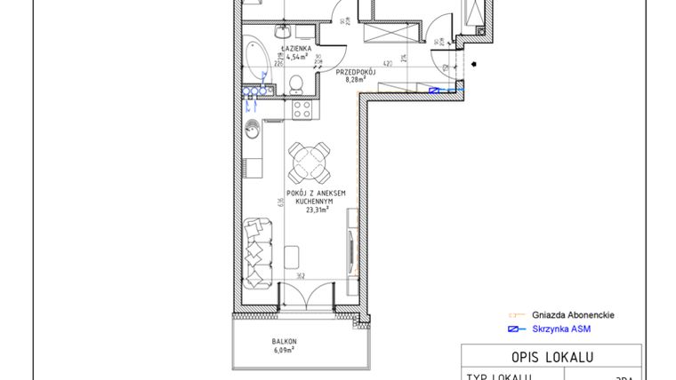
Nowe 3-pokojowe mieszkanie na sprzedaż o powierzchni 60,48 m² znajduje się w nowo budowanej inwestycji deweloperskiej Harmonia bud. M3 na Podleśnej, ul. Bydgoska (2.6 km od centrum Olsztyna).
Inwestycja jest realizowana przez Iławskie Przedsiębiorstwo Budowlane "IPB" Sp. z o.o.
Cała inwestycja składa się z 1 budynku, w którym łącznie znajduje się 60 nowych mieszkań.
Inwestycja jest już wyprzedana.
W budynku jest 5 kondygnacji naziemnych oraz 1 kondygnacja podziemna.
Inwestycja Harmonia bud. M3 została wybudowana i oddana do użytkowania w 1 kw. 2026 roku.
Nowe mieszkanie o oznaczeniu 29 znajduje się na parterze i jest 1-poziomowe. Pomieszczenia mają 270 centymetrów wysokości. W mieszkaniu znajdują się 3 pokoje.
Dla przyszłych mieszkańców Harmonia bud. M3 deweloper przewidział miejsca postojowe podziemne, miejsca postojowe naziemne.
Dzięki temu przyszli właściciele nie będą musieli poszukiwać wolnej przestrzeni parkingowej. Dodatkowo, miejsce postojowe w garażu podziemnym zabezpiecza przed niekorzystnymi warunkami atmosferycznymi.
Opis Inwestycji
Okazyjna cena
Pow. dodatkowe
Zielona enklawa Olsztyna
Pięknie położone, dobrze skomunikowane z miastem, a jednocześnie przytulone do natury, Osiedle Harmonia sprzyja zachowaniu życiowego balansu.
Dobra komunikacja z centrum Olsztyna pozwala korzystać z przywilejów miasta, zaś sąsiedztwo lasu daje wytchnienie od zgiełku, smogu i pośpiechu ulicy.
Rekreacja dla całej rodziny
Położony tuż obok Las Miejski to nie tylko idealna przestrzeń do spacerów czy wycieczek rowerowych, ale także moc możliwości dla miłośników aktywnego wypoczynku. Pośród rekreacyjnych atrakcji Lasu Miejskiego warto wymienić park linowy, siłownię na powietrzu, korty tenisowe, a także pump track. Z kolei wijąca się w Lesie Miejskim rzeka Łyna to siedlisko ptactwa oraz zwierząt, a także popularny szlak spływowy.
Zamieszkaj w harmonii
Harmonia to współgranie, idealne dopełnienie. Żyć w harmonii to żyć w zgodzie ze sobą i otoczeniem. Wtedy jesteśmy spokojni, akceptujemy siebie i otaczający nas świat.
Mieszkanie znajduje się w inwestycji Harmonia bud. M3.





