Mieszkanie na sprzedaż 4 pokoje o powierzchni 84,04 m² numer M1
Oferta archiwalna
Inwestycja:
Dolnomłyńska 5Deweloper:
HK Group
Inwestycja:
Dolnomłyńska 5Deweloper:
HK GroupKraków, Czyżyny, ul. Dolnomłyńska 5
Kraków, Czyżyny, ul. Dolnomłyńska 5
Nieruchomość została sprzedana
Zobacz pozostałe mieszkania w inwestycji Dolnomłyńska 5 lub inne propozycje na Czyżynach
Najbliższe inwestycje
- Tylko 14 apartamentów na I etapie i od 4-8 apartamentów w II etapie inwestycji. Tylko dwa mieszkania w każdym budynku. Indywidualne garaże i komórki lokatorskie o dużych metrażach. Przemyślane rozwiązaniami architektoniczne – elewacja z wykorzystaniem wysokiej jakości elementów drewnopodobnych, betonu architektonicznego, cało szklane balustrady, duże przeszklenia zapewniające odpowiednie
Apartamenty Gałczyńskiego
od 1 170 414 zł
gotowe
Kraków, Czyżyny,
ul. Konstantego Ildefonsa Gałczyńskiego
3-5 pokoi, Metraż 64-94 m2
- Najnowsza inwestycja firmy PROINS usytuowana jest przy ul. Centralnej w Czyżynach. To 2 (ostatni) etap. Składać się będzie z dwóch 4- i 5-piętrowych segmentów, pod którymi znajdują się 2-poziomowe garaże wielostanowiskowe. Wszystkie mieszkania posiadają balkony lub loggie. Na parterach dodatkowo część mieszkań posiadać będzie ogródki. W istniejącej już części osiedla na parterach zlokalizowane są
Centralna 51C
od 598 620 zł
2 kwartał 2027
Kraków, Czyżyny,
ul. Centralna 51C
1-4 pokoje, Metraż 34-142 m2
- Sołtysowska została przemyślana na każdym poziomie, dlatego odpowie na różnorodne potrzeby lokatorów. Posiada 73 lokale, co zapewnia kameralność i spokój. Dostępny zakres metraży zaczyna się od 28 m2, a kończy na 130 m2. To dobrze przemyślane projekty mieszkań, ergonomiczne zagospodarowanie przestrzeni i komfort. Lokale zaprojektowano w taki sposób, by każdy metr kwadratowy był jak najbardziej
Sołtysowska
od 509 990 zł
gotowe
Kraków, Czyżyny, ul. Sołtysowska
1-6 pokoi, Metraż 28-127 m2
Termin oddania
2 kw. 2027
Ilość pokoi
4 pokoje
Metraż
84,04 m²
Piętro
1 piętro
Powierzchnie dodatkowe
Balkon
Kuchnia
otwarta kuchnia
Wysokość pomieszczeń
od 260 do 280 cm wysokości
Ilość poziomów
1 poziom
Oznaczenie oferty
M1

Raport o deweloperze
Poznaj dewelopera bliżej! Pobierz raport, w którym znajdziesz kluczowe informacje o firmie, jej doświadczeniu, nagrodach oraz aktualnych i zrealizowanych inwestycjach.
Budynek i otoczenie
Miejsca postojowe | |
|---|---|
Standard wykończenia | standard deweloperski |
Realizacja inwestycji | rozpoczęcie budowy w 2 kw. 2025 roku, planowane oddanie do użytkowania w 2 kw. 2027 roku |
Udogodnienia | winda |
Przyroda | informacja u dewelopera |
Charakterystyka energetyczna nieruchomości | informacja u dewelopera |
Rezerwacja i finanse
Rodzaj własności | Odrębna własność z własnością gruntu |
|---|---|
Wysokość czynszu | informacja u dewelopera |
Warunki rezerwacji | Informacja u dewelopera |
Zabezpieczenie środków | Informacja u dewelopera |
Lokalizacja inwestycji
Przystanek Tramwajowy - 254 m
Przystanek Autobusowy - 255 m
Dojazd do centrum: pokaż
W pobliżu 1 km od tej inwestycji znajdują się:
39 kawiarni i restauracji, 50 sklepów, 41 obiektów sportowych, 11 placówek medycznych, 29 placówek edukacyjnych, 37 placów zabaw
Przeczytaj więcej o lokalizacji
Czyżyny, czyli dzielnica XIV Krakowa leży w centralnej części miasta i zajmuje powierzchnię 1225,68 ha. Mieszka w niej 26 699 osób. Jest to jedna z bardziej zindustrializowanych części miasta. Znajduje się tu m.in. Elektrociepłownia Kraków i Krakowski Park Technologiczny. Początkowo krajobraz Czyżyn miał charakter stricte przemysłowy, jednak w latach 70-tych i 80-tych XXw. zaczęły powstawać także osiedla mieszkaniowe dla pracowników pobliskich zakładów. Z czasem zostały one odnowione, a zabudowa jest w ostatnich latach uzupełniana kolejnymi nieruchomościami pełniącymi funkcję mieszkalną. Zadbano również o rozbudowę infrastruktury społecznej w postaci m.in. przedszkoli i szkół. W dzielnicy znajduje się także krakowska Akademia Wychowania Fizycznego. Na Czyżynach bez problemu znajdziemy tereny zielone. Poza działkami, mamy tu Lasek Łęgowski i 60-hektarowy Park Lotników Polskich będący drugim, co do wielkości parkiem w mieście. W dzielnicy mieści się także Muzeum Lotnictwa Polskiego. Ze względu na swoje znaczenie przemysłowe, Czyżyny są dobrze skomunikowane z resztą miasta. Biegnie przez nie także droga krajowa i droga wojewódzka.
Opis oferty
Nowe 4-pokojowe mieszkanie na sprzedaż o powierzchni 84,04 m² znajduje się w nowo budowanej inwestycji deweloperskiej Dolnomłyńska 5 na Czyżynach, ul. Dolnomłyńska 5 (4.6 km od centrum Krakowa).
Inwestycja jest realizowana przez HK Group.
Cała inwestycja składa się z 1 budynku, w którym łącznie znajduje się 14 nowych mieszkań.
Inwestycja jest już wyprzedana.
W budynku są 4 kondygnacje naziemne oraz 1 kondygnacja podziemna.
Inwestycja Dolnomłyńska 5 jest w trakcie budowy z planowanym na 2 kw. 2027 roku terminem oddania do użytkowania.
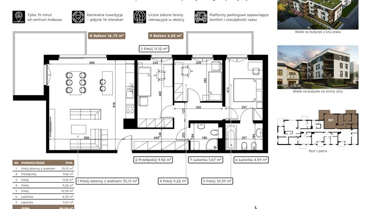
Nowe mieszkanie o oznaczeniu M1 znajduje się na 1 piętrze i jest 1-poziomowe. Pomieszczenia mają od 260 do 280 centymetrów wysokości. W mieszkaniu znajdują się 4 pokoje.
Dla przyszłych mieszkańców Dolnomłyńska 5 deweloper przewidział miejsca postojowe podziemne.
Dzięki temu przyszli właściciele nie będą musieli poszukiwać wolnej przestrzeni parkingowej. Dodatkowo, miejsce postojowe w garażu podziemnym zabezpiecza przed niekorzystnymi warunkami atmosferycznymi.
Opis Inwestycji
Okazyjna cena
Kameralny budynek
Tereny zielone
Pow. dodatkowe
Kameralna inwestycja w nowoczesnym wydaniu
Dolnomłyńska 5 to miejsce, gdzie możesz zwolnić tempo i cieszyć się spokojem, którego trudno doświadczyć w większych osiedlach. Kameralna trzypiętrowa zabudowa, nowoczesna architektura oraz starannie zaprojektowana przestrzeń sprawiają, że inwestycja ma swój wyjątkowy, butikowy charakter. Tylko 14 mieszkań oznacza spokój i większą prywatność. Winda zadba o Twój komfort, a miejsca parkingowe na platformach pozwolą zapomnieć o problemach z parkowaniem. Tu liczy się jakość życia, codzienna wygoda i estetyka, która zachwyca na każdym kroku.
Twoja przestrzeń w idealnym rozmiarze
Tylko 14 mieszkań, przemyślane układy od 37 do 97 m² i maksymalne wykorzystanie przestrzeni – tutaj każdy metr został zaprojektowany z pomysłem. Duże okna wpuszczają mnóstwo naturalnego światła, a przestronne balkony stają się Twoją prywatną strefą relaksu. Poranna kawa na świeżym powietrzu, popołudniowy odpoczynek z książką, a może wieczorne spotkania z przyjaciółmi pod gołym niebem? Ty decydujesz! Wnętrza zaprojektowano tak, by dopasowały się do Twojego stylu życia – funkcjonalnie, komfortowo i nowocześnie.
Mieszkanie znajduje się w inwestycji Dolnomłyńska 5.





