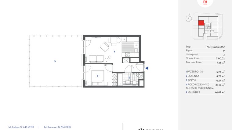
Mieszkanie na sprzedaż 2 pokoje o powierzchni 42,1 m² numer C.00.02
Promocja
Deweloper:
Henniger Investment S.A.
Deweloper:
Henniger Investment S.A.Katowice, Osiedle Tysiąclecia, ul. Zawiszy Czarnego 16 B
Katowice, Osiedle Tysiąclecia, ul. Zawiszy Czarnego 16 B
Promocje
Dni Otwarte
Dzień Otwarty! 14 marca 2026 roku w godzinach od 10-16!
Termin oddania
Gotowe
Ilość pokoi
2 pokoje
Metraż
42,1 m²
Piętro
Parter
Kuchnia
otwarta kuchnia
Wysokość pomieszczeń
260 cm wysokości
Ilość poziomów
1 poziom
Oznaczenie oferty
C.00.02

Raport o deweloperze
Poznaj dewelopera bliżej! Pobierz raport, w którym znajdziesz kluczowe informacje o firmie, jej doświadczeniu, nagrodach oraz aktualnych i zrealizowanych inwestycjach.
Budynek i otoczenie
Miejsca postojowe | |
|---|---|
Komórki lokatorskie | dostępne (89) |
Standard wykończenia | standard deweloperski |
Realizacja inwestycji | rozpoczęcie budowy w 2 kw. 2023 roku, inwestycja została oddana do użytkowania w 2 kw. 2025 roku |
Udogodnienia | plac zabaw, monitoring, klimatyzacja, winda, instalacja fotowoltaiczna, paczkomat |
Przyroda | w okolicy inwestycji znajduje się park |
Charakterystyka energetyczna nieruchomości | informacja u dewelopera |
Rezerwacja i finanse
Rodzaj własności | Odrębna własność z użytkowaniem wieczystym gruntu |
|---|---|
Wysokość czynszu | informacja u dewelopera |
Warunki rezerwacji | Informacja u dewelopera |
Zabezpieczenie środków | Otwarty mieszkaniowy rachunek powierniczy |
Zdjęcia z budowy
Zobacz na jakim etapie budowy jest ta inwestycja
Lokalizacja inwestycji
Stacja kolejowa - Katowice Załęże - 1928 m
Przystanek Tramwajowy - 303 m
Przystanek Autobusowy - 220 m
Dojazd do centrum: pokaż
W pobliżu 1 km od tej inwestycji znajdują się:
27 kawiarni i restauracji, 40 sklepów, 42 obiekty sportowe, 13 placówek medycznych, 26 placówek edukacyjnych, 24 place zabaw
Przeczytaj więcej o lokalizacji
Katowice to miasto w województwie śląskim o powierzchni 164 km kw i liczbie mieszkańców ponad 300 tys. osób. Zabudowa miasta to głównie powojenne bloki i typowe dla Śląska zabytkowe kamienice. Katowice dzielą się na dzielnice pogrupowane w zespoły dzielnic: zespół północny, śródmiejski, południowy, wschodni i zachodni. Miasto jest wojewódzkim centrum medycznym, z kilkunastoma szpitalami, w tym Centralnym Szpitalem Klinicznym im. Kornela Gibińskiego, Szpitalem Klinicznym im. Andrzeja Mieleckiego, Uniwersyteckim Centrum Okulistyki i Onkologii, Szpitalem Klinicznym nr 6 czy Górnośląskim Centrum Zdrowia Dziecka. Działają tu też liczne uniwersytety, takie jak Akademia Wychowania Fizycznego im. Jerzego Kukuczki, Akademia Sztuk Pięknych czy wydziały Politechniki Śląskiej.
Opis oferty
Nowe 2-pokojowe mieszkanie na sprzedaż o powierzchni 42,1 m² znajduje się w nowo budowanej inwestycji deweloperskiej Mieszkaj w mieście - Na Tysiącleciu budynek C na Osiedlu Tysiąclecia, ul. Zawiszy Czarnego 16 B (3.8 km od centrum Katowic).
Inwestycja jest realizowana przez Henniger Investment S.A.
Cała inwestycja składa się z 4 budynków, w których łącznie znajduje się 141 nowych mieszkań.
Na sprzedaż pozostaje 61 ofert o powierzchni od 27 do 117 m².
W budynkach jest 15 kondygnacji naziemnych oraz 1 kondygnacja podziemna.
Inwestycja Mieszkaj w mieście - Na Tysiącleciu budynek C została wybudowana i oddana do użytkowania w 2 kw. 2025 roku.
Nowe mieszkanie o oznaczeniu C.00.02 znajduje się na parterze i jest 1-poziomowe. Pomieszczenia mają 260 centymetrów wysokości. W mieszkaniu znajdują się 2 pokoje.
Do mieszkania przewidziano możliwość zakupu komórki lokatorskiej, którą można zagospodarować na spiżarnię, warsztat czy składzik.
Dla przyszłych mieszkańców Mieszkaj w mieście - Na Tysiącleciu budynek C deweloper przewidział miejsca postojowe podziemne, miejsca postojowe naziemne.
Dzięki temu przyszli właściciele nie będą musieli poszukiwać wolnej przestrzeni parkingowej. Dodatkowo, miejsce postojowe w garażu podziemnym zabezpiecza przed niekorzystnymi warunkami atmosferycznymi.
Opis Inwestycji
Okazyjna cena
Tereny zielone
MIESZKANIA GOTOWE DO ODBIORU!
W legendarnej lokalizacji - na Osiedlu Tysiąclecia - powstaje nowoczesny kompleks czterech budynków mieszkalnych, które zostaną estetycznie wkomponowane w okolicę, zachowując przy tym poszanowanie dla architektury tego miejsca i pierwotny charakter osiedla.
W ramach projektu "Mieszkaj w Mieście - Na Tysiącleciu" powstaną 4 budynki z mieszkaniami o zróżnicowanych metrażach i funkcjonalnych układach z nawet 40-metrowymi widokowym balkonami.
Mieszkaj w Mieście – Na Tysiącleciu to nie tylko budynki i mieszkania – to miejsce, które ma ambicje stać się integralną częścią katowickiego krajobrazu dzięki poszanowaniu najlepszych tradycji architektonicznych oraz dbałości o komfort życia mieszkańców i przyszłość miasta.
Zaokrąglone balustrady w klasycznym, białym kolorze nawiązują do kultowych Kukurydz, a ściany w odcieniu grafitowym znakomicie kontrastują z jasnymi elementami fasady, tworząc kompozycję, która łączy tradycję z nowoczesnością. Prosta, ale efektowna forma architektoniczna gwarantuje, że budynki będą idealnie współgrały z otoczeniem, a przestronne loggie i nowe podejście do architektury zapewnią najwyższy komfort przyszłych mieszkańców.
Budynek ma już pozwolenie na użytkowanie.
Inwestycja Mieszkaj w mieście - Na Tysiącleciu budynek C znajduje się na Osiedlu Tysiąclecia, ul. Zawiszy Czarnego 16 B (3.8 km od centrum Katowic), została zrealizowana przez Henniger Investment S.A.
Inwestycja Mieszkaj w mieście - Na Tysiącleciu budynek C została wybudowana i oddana do użytkowania w 2 kw. 2025 roku.
Cały projekt składa się z 141 nowych mieszkań znajdujących się w 4 budynkach. Budynki posiadają 15 kondygnacji naziemnych wraz z parterem oraz 1 kondygnację podziemną.
Aktualnie w inwestycji Mieszkaj w mieście - Na Tysiącleciu budynek C w sprzedaży jest 87 nowych mieszkań o powierzchni od 27 do 117 metrów kwadratowych , w cenie od 9 204 zł za metr kwadratowy.
Dla przyszłych mieszkańców Mieszkaj w mieście - Na Tysiącleciu budynek C deweloper przewidział:
miejsca postojowe podziemne (89 miejsc)
miejsca postojowe naziemne (77 miejsc)
W inwestycji znajduje się 89 komórek lokatorskich.
Mieszkanie znajduje się w inwestycji Mieszkaj w mieście - Na Tysiącleciu budynek C, w której znajduje się w sprzedaży jeszcze 20 podobnych nowych mieszkań.
Henniger Investment S.A.
Strona internetowa inwestycjiAdres biura sprzedaży:
ul. Zawiszy Czarnego 16 B, 40-872 KatowiceGodziny otwarcia biura sprzedaży:
- Poniedziałek: 08:00 - 17:00
- Wtorek: 08:00 - 17:00
- Środa: 08:00 - 17:00
- Czwartek: 08:00 - 17:00
- Piątek: 08:00 - 17:00
- Sobota: 10:00 - 14:00





