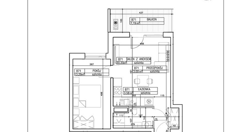
Mieszkanie na sprzedaż 2 pokoje o powierzchni 40,07 m² numer B71
Inwestycja:
Symfonia - Chodkiewicza 9Deweloper:
Grupa Moderator
Inwestycja:
Symfonia - Chodkiewicza 9Deweloper:
Grupa ModeratorBydgoszcz, Bocianowo-Śródmieście-Stare Miasto, ul. Chodkiewicza 9
Bydgoszcz, Bocianowo-Śródmieście-Stare Miasto, ul. Chodkiewicza 9
Termin oddania
Gotowe
Ilość pokoi
2 pokoje
Metraż
40,07 m²
Piętro
2 piętro
Powierzchnie dodatkowe
Balkon
Wysokość pomieszczeń
od 260 do 280 cm wysokości
Ilość poziomów
1 poziom
Oznaczenie oferty
B71

Raport o deweloperze
Poznaj dewelopera bliżej! Pobierz raport, w którym znajdziesz kluczowe informacje o firmie, jej doświadczeniu, nagrodach oraz aktualnych i zrealizowanych inwestycjach.
Budynek i otoczenie
Miejsca postojowe | |
|---|---|
Komórki lokatorskie | dostępne |
Standard wykończenia | standard deweloperski Ogrzewanie podłogowe |
Realizacja inwestycji | rozpoczęcie budowy w 1 kw. 2024 roku, inwestycja została oddana do użytkowania w 4 kw. 2025 roku |
Udogodnienia | plac zabaw, monitoring, teren ogrodzony, klimatyzacja, winda, instalacja fotowoltaiczna |
Przyroda | w okolicy inwestycji znajduje się park |
Charakterystyka energetyczna nieruchomości | informacja u dewelopera |
Rezerwacja i finanse
Rodzaj własności | Odrębna własność z własnością gruntu |
|---|---|
Wysokość czynszu | informacja u dewelopera |
Warunki rezerwacji | Informacja u dewelopera |
Zabezpieczenie środków | Informacja u dewelopera |
Zdjęcia z budowy
Zobacz na jakim etapie budowy jest ta inwestycja
Lokalizacja inwestycji
Stacja kolejowa - Bydgoszcz Główna - 1390 m
Przystanek Tramwajowy - 156 m
Przystanek Autobusowy - 162 m
Dojazd do centrum: pokaż
W pobliżu 1 km od tej inwestycji znajdują się:
33 kawiarnie i restauracje, 40 sklepów, 32 obiekty sportowe, 26 placówek medycznych, 61 placówek edukacyjnych, 24 place zabaw
Przeczytaj więcej o lokalizacji
Bydgoszcz to miasto powiatowe będące stolicą woj. kujawsko-pomorskiego. Przepływają tędy rzeki Wisła i Brda. Zabudowa jest zróżnicowana. Śródmieście wyróżnia się zwartym budownictwem i wieloma zabytkowymi kamienicami. Dalej od centrum pojawiają się budynki wielorodzinne, a na obrzeżach miasta liczne domy jednorodzinne. Przy północnej i południowej granicy rozciągają się rozległe tereny zielone, m.in. Las Gdański. Bydgoszcz to ośrodek gospodarczy, akademicki i kulturowy, w którym mieści się kilkanaście szkół wyższych, teatr, filharmonia i opera. Mieszkańcy mają dostęp do bogatej oferty medycznej – działa tu kilkanaście szpitali. Prężnie rozwija się sektor handlowo-usługowy i działa Bydgoski Park Przemysłowo-Technologiczny. Bydgoszcz jest rewelacyjnie skomunikowany z największymi miastami kraju. Znajduje się tu port lotniczy, a liczne drogi wojewódzkie i krajowe zapewniają dogodną komunikację drogową. Na obszarze całego miasta działa komunikacja publiczna.
Opis oferty
Nowe 2-pokojowe mieszkanie na sprzedaż o powierzchni 40,07 m² znajduje się w nowo budowanej inwestycji deweloperskiej Symfonia - Chodkiewicza 9 na Bocianowo-Śródmieście-Stare Miasto, ul. Chodkiewicza 9 (1.3 km od centrum Bydgoszczy).
Inwestycja jest realizowana przez Grupa Moderator.
Cała inwestycja składa się z 2 budynków, w których łącznie znajduje się 98 nowych mieszkań.
Na sprzedaż pozostaje 66 ofert o powierzchni od 25 do 126 m².
W budynkach są 4 kondygnacje naziemne oraz 2 kondygnacje podziemne.
Inwestycja Symfonia - Chodkiewicza 9 została wybudowana i oddana do użytkowania w 4 kw. 2025 roku.
Nowe mieszkanie o oznaczeniu B71 znajduje się na 2 piętrze i jest 1-poziomowe. Pomieszczenia mają od 260 do 280 centymetrów wysokości. W mieszkaniu znajdują się 2 pokoje.
Dla przyszłych mieszkańców Symfonia - Chodkiewicza 9 deweloper przewidział miejsca postojowe podziemne, miejsca postojowe naziemne.
Dzięki temu przyszli właściciele nie będą musieli poszukiwać wolnej przestrzeni parkingowej. Dodatkowo, miejsce postojowe w garażu podziemnym zabezpiecza przed niekorzystnymi warunkami atmosferycznymi.
Mieszkanie znajduje się w inwestycji Symfonia - Chodkiewicza 9, w której znajduje się w sprzedaży jeszcze 36 podobnych nowych mieszkań.
Grupa Moderator
Adres biura sprzedaży:
ul. Focha 12, 85-070 BydgoszczGodziny otwarcia biura sprzedaży:
- Poniedziałek: 08:30 - 16:00
- Wtorek: 08:30 - 16:00
- Środa: 08:30 - 16:00
- Czwartek: 08:30 - 16:00
- Piątek: 08:30 - 16:00





